Full Description
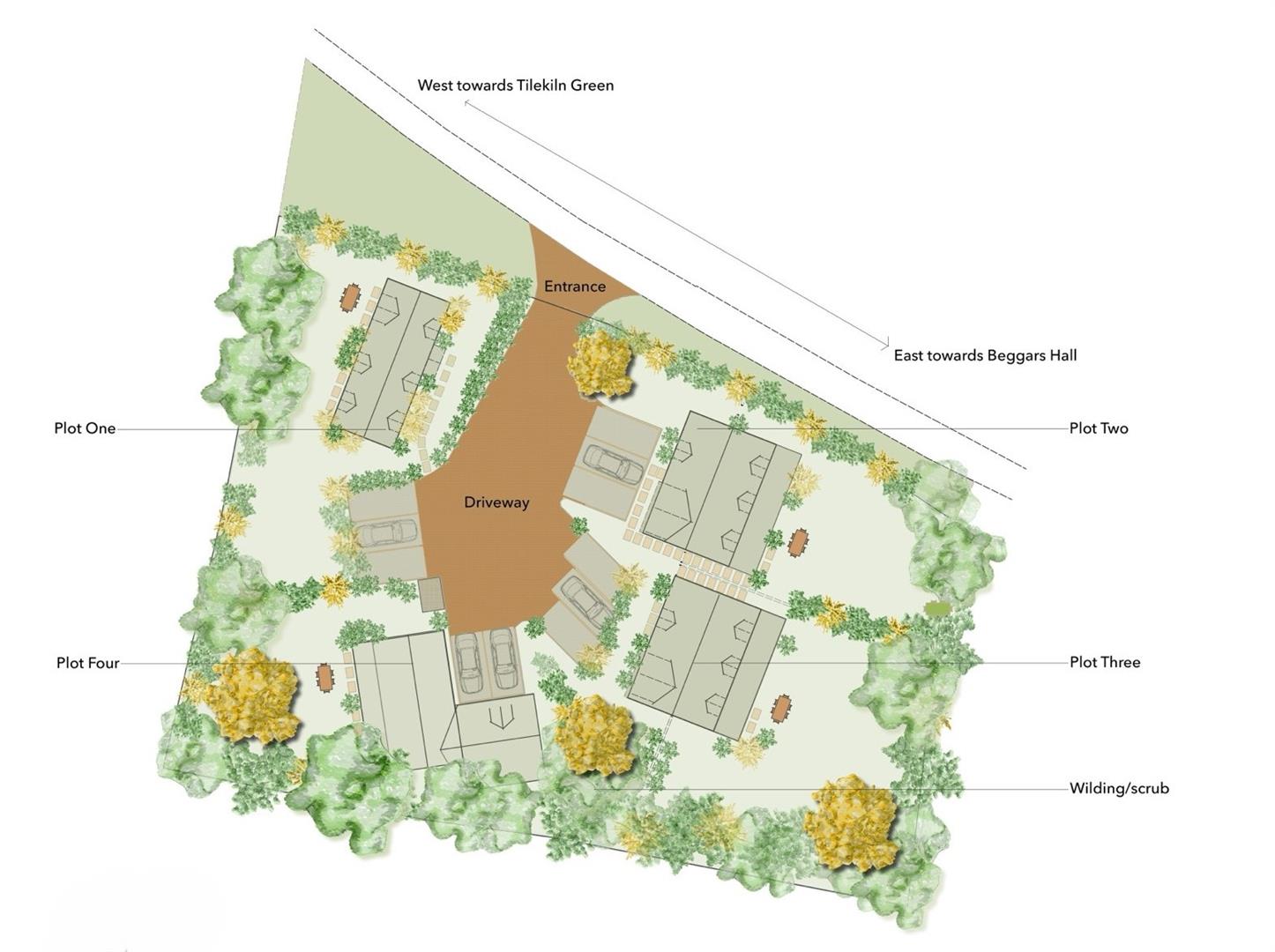
Description from Seller:Semi-Rural 0.6 Acre site with planning for 4 x 4 Bed Detached Houses approx. 1800 sq ft each with private off-road parking (inc x 1 with garage).Prime Semi-Rural Development Opportunity: 0.6 Acre Site with Planning for Four Detached HomesThis generous 0.6-acre semi-rural plot, situated in the picturesque Hamlet of Bedlars Green (part of Great Hallingbury), benefits from full planning approval for the construction of four new 4-bedroom detached houses, each approximately 1,800 sq ft (including one with a garage). All units will feature private off-road parking.Key Site Features and Location:1.Location: Tucked away on a quiet, picturesque lane that doubles as a popular Public Right of Way for local dog walkers and visitors to the nearby 1,000-acre National Trust ancient woodland, Hatfield Forest. The site adjoins open farmland, offering a tranquil, friendly setting.2.Accessibility: Excellent transport links are provided by the nearby M11 (connecting London and Cambridge). Fast, reliable rail services are available from Bishops Stortford and Stansted Airport.3.Local Amenities: The site is in close proximity to the attractive market towns of Bishops Stortford and Great Dunmow, as well as the villages of Hatfield Broad Oak and Stansted. The area also boasts a strong selection of high-performing state and prestigious private schools.Current Status and Planning:1.Existing Structure: The plot currently hosts a single 5-bedroom bungalow, which is structurally sound but requires cosmetic upgrading.2.Development Options: The site offers flexibility for development: either the proposed four new units or a scheme retaining/renovating the existing bungalow plus two new units.3.Planning References:4.Outline Planning Approved: Ref: UTT/25/1332/OP5.Reserved Matters Approved: Ref: UTT/25/2877/DFO
Viewing
Please contact us on 01708 963063 if you wish to arrange a viewing appointment for this property, or require further information.
Disclaimer
Noble Residential - CM13 endeavour to maintain accurate depictions of properties in Virtual Tours, Floor Plans and descriptions, however, these are intended only as a guide and purchasers must satisfy themselves by personal inspection.
Viewing
Please contact us on 01708 963063 if you wish to arrange a viewing appointment for this property, or require further information.
Disclaimer
Noble Residential - CM13 endeavour to maintain accurate depictions of properties in Virtual Tours, Floor Plans and descriptions, however, these are intended only as a guide and purchasers must satisfy themselves by personal inspection.

