- Semi Detached
- Extended
- Loft Room
- 120ft Garden
- Driveway
- No Chain Involved
Full Description
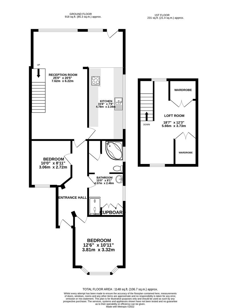
Guide Price £450,000 - £475,000. Located in the popular residential location of Cranham in Upminster is this semi detached bungalow offered for sale with no onward chain, the accommodation includes entrance hall, extended reception room, kitchen, two bedrooms, four piece bathroom and a loft room currently used as an additional bedroom. Externally there is a pretty 120ft rear garden and a driveway to the front.
Entrance Hall
Entrance door, double glazed window to side, carpet, radiator.
Reception Room (7.62m x 6.22m narrowing to 3.78m (25' x 20'5 narro)
Double glazed windows to rear, double glazed door to rear, carpet, three radiators, stairs to first floor.
Kitchen (4.78m x 2.34m (15'8 x 7'8))
Frosted double glazed window to side, carpet, stainless steel single drainer sink, gas boiler, plumbing for washing machine and dishwasher, wall and base units, electric hob, oven and extractor.
Bedroom One (3.81m x 3.15m (12'6 x 10'4 ))
Double glazed bay window to front, coved ceiling, carpet, radiator.
Bedroom Two (3.05m x 2.72m (10' x 8'11))
Double glazed window to front, coved ceiling, carpet, radiator.
Bathroom (4.57m x 2.46m (15' x 8'1))
Frosted double glazed window to side, pedestal wash hand basin, low level WC, shower cubicle, corner bath, radiator, carpet, part tiled walls, storage cupboards.
Loft Area (5.66m x 3.73m (18'7 x 12'3))
Double glazed windows to front and rear, carpet, radiator, two built in wardrobes one providing access to eaves storage.
Garden (36.58mft (120ft ))
Patio area to the rear of propety with steps to lawn, various surrounding flower beds, additional patio area at rear of garden, shed, side pedestrian gate into garden.
Parking
Driveway to the front, shared driveway to the side with gates to additional parking area.
Viewing
Please contact us on 01708 963063 if you wish to arrange a viewing appointment for this property, or require further information.
Energy Performance Certificate
Click here to view the Energy Efficiency Rating and Environmental Impact Rating for this property.
Disclaimer
Noble Residential - CM13 endeavour to maintain accurate depictions of properties in Virtual Tours, Floor Plans and descriptions, however, these are intended only as a guide and purchasers must satisfy themselves by personal inspection.
Entrance Hall
Entrance door, double glazed window to side, carpet, radiator.
Reception Room (7.62m x 6.22m narrowing to 3.78m (25' x 20'5 narro)
Double glazed windows to rear, double glazed door to rear, carpet, three radiators, stairs to first floor.
Kitchen (4.78m x 2.34m (15'8 x 7'8))
Frosted double glazed window to side, carpet, stainless steel single drainer sink, gas boiler, plumbing for washing machine and dishwasher, wall and base units, electric hob, oven and extractor.
Bedroom One (3.81m x 3.15m (12'6 x 10'4 ))
Double glazed bay window to front, coved ceiling, carpet, radiator.
Bedroom Two (3.05m x 2.72m (10' x 8'11))
Double glazed window to front, coved ceiling, carpet, radiator.
Bathroom (4.57m x 2.46m (15' x 8'1))
Frosted double glazed window to side, pedestal wash hand basin, low level WC, shower cubicle, corner bath, radiator, carpet, part tiled walls, storage cupboards.
Loft Area (5.66m x 3.73m (18'7 x 12'3))
Double glazed windows to front and rear, carpet, radiator, two built in wardrobes one providing access to eaves storage.
Garden (36.58mft (120ft ))
Patio area to the rear of propety with steps to lawn, various surrounding flower beds, additional patio area at rear of garden, shed, side pedestrian gate into garden.
Parking
Driveway to the front, shared driveway to the side with gates to additional parking area.
Viewing
Please contact us on 01708 963063 if you wish to arrange a viewing appointment for this property, or require further information.
Energy Performance Certificate
Click here to view the Energy Efficiency Rating and Environmental Impact Rating for this property.
Disclaimer
Noble Residential - CM13 endeavour to maintain accurate depictions of properties in Virtual Tours, Floor Plans and descriptions, however, these are intended only as a guide and purchasers must satisfy themselves by personal inspection.

