Full Description
•Extended Four Bedroom Semi-Detached House•Vacant with No Onward Chain•Two Reception Rooms•Integral Garage & Driveway•80ft Rear Garden•Scope to Convert Loft (STPP)•26 Min Walk to Romford Station (source: google maps)
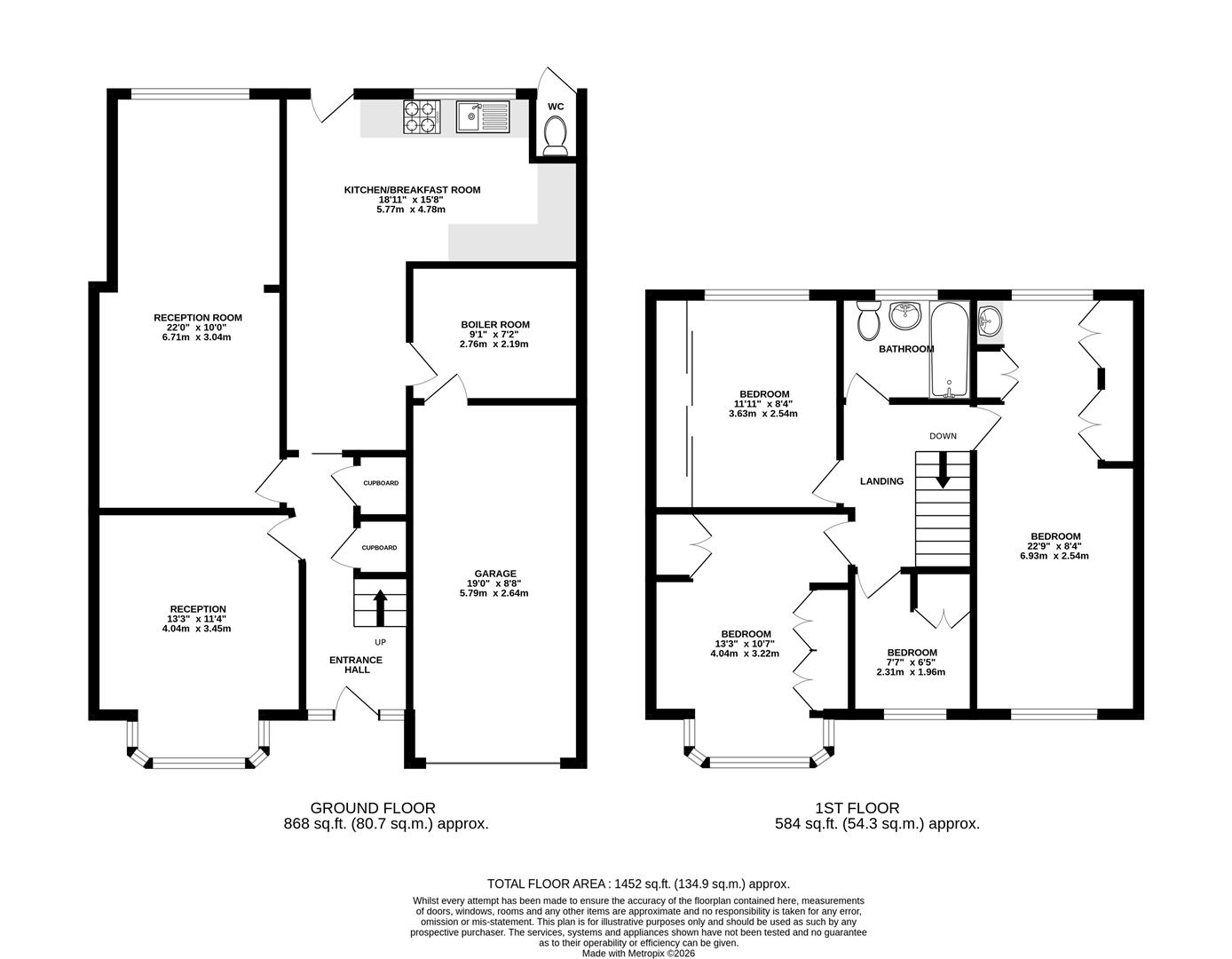
Entrance Hall
Entrance hall, two windows. Coving, stairs to first floor, two cupboards under stairs, radiator, carpet.
Reception Room One (4.04m x 3.45m max sizes (13'3 x 11'4 max sizes))
Double glazed bay window. Coving, dado rail, carpet.
Reception Room Two (6.71m x 3.05m max sizes (22' x 10' max sizes))
Double glazed window. Coving, two radiators, carpet.
Kitchen/Breakfast Room (5.77m x 4.78m max sizes (18'11 x 15'8 max sizes))
Double glazed window, door to rear garden. Range of base and eye level wall cabinets with worktops, integrated oven, stainless steel four burner gas hob, stainless steel single drainer sink unit, coving, radiator, part tiled walls, vinyl flooring.
Boiler Room (2.77m x 2.18m (9'1 x 7'2))
Floor mounted boiler.
Integral Garage (5.79m x 2.64m (19' x 8'8))
Up & over door, lighting, power.
First Floor Landing
Access to loft, smooth ceiling, carpet.
Bedroom One (6.93m x 2.54m (22'9 x 8'4))
Double glazed windows to two aspects. Coving, radiator, built in wardrobes, carpet, wall mounted sink with tile splashback and cupboard beneath.
Bedroom Two (4.04m x 3.23m max sizes (13'3 x 10'7 max sizes))
Double glazed bay window. Coving, range of built in wardrobes, radiator, carpet.
Bedroom Three (3.63m x 2.54m (11'11 x 8'4))
Double glazed window. Range of built in wardrobes, radiator, carpet.
Bedroom Four (2.31m x 1.96m max sizes (7'7 x 6'5 max sizes))
Double glazed window. Radiator, built in wardrobe, carpet.
Bathroom (2.13m x 1.70m (7' x 5'7))
Double glazed window. Suite comprising of bath with shower attachment to tap and separate overhead electric shower, pedestal wash basin, low level wc, smooth ceiling, spotlight, part tiled walls, heated towel rail, laminate flooring.
Outdoor WC
Low level WC, tiled walls, vinyl flooring.
Rear Garden (25 (82'0"))
Slabbed seating area to the direct rear of the property with the remainder mainly laid to lawn, perimeter flower beds with shrubs, outside light, outside tap, timber outbuilding, outdoor WC.
Timber Outbuilding
In need of repair. Two separate rooms measuring: 15'10 x 6'9 and 15'10 x 6'9.
Viewing
Please contact us on 01708 963063 if you wish to arrange a viewing appointment for this property, or require further information.
Energy Performance Certificate
Click here to view the Energy Efficiency Rating and Environmental Impact Rating for this property.
Disclaimer
Noble Residential - CM13 endeavour to maintain accurate depictions of properties in Virtual Tours, Floor Plans and descriptions, however, these are intended only as a guide and purchasers must satisfy themselves by personal inspection.
Entrance Hall
Entrance hall, two windows. Coving, stairs to first floor, two cupboards under stairs, radiator, carpet.
Reception Room One (4.04m x 3.45m max sizes (13'3 x 11'4 max sizes))
Double glazed bay window. Coving, dado rail, carpet.
Reception Room Two (6.71m x 3.05m max sizes (22' x 10' max sizes))
Double glazed window. Coving, two radiators, carpet.
Kitchen/Breakfast Room (5.77m x 4.78m max sizes (18'11 x 15'8 max sizes))
Double glazed window, door to rear garden. Range of base and eye level wall cabinets with worktops, integrated oven, stainless steel four burner gas hob, stainless steel single drainer sink unit, coving, radiator, part tiled walls, vinyl flooring.
Boiler Room (2.77m x 2.18m (9'1 x 7'2))
Floor mounted boiler.
Integral Garage (5.79m x 2.64m (19' x 8'8))
Up & over door, lighting, power.
First Floor Landing
Access to loft, smooth ceiling, carpet.
Bedroom One (6.93m x 2.54m (22'9 x 8'4))
Double glazed windows to two aspects. Coving, radiator, built in wardrobes, carpet, wall mounted sink with tile splashback and cupboard beneath.
Bedroom Two (4.04m x 3.23m max sizes (13'3 x 10'7 max sizes))
Double glazed bay window. Coving, range of built in wardrobes, radiator, carpet.
Bedroom Three (3.63m x 2.54m (11'11 x 8'4))
Double glazed window. Range of built in wardrobes, radiator, carpet.
Bedroom Four (2.31m x 1.96m max sizes (7'7 x 6'5 max sizes))
Double glazed window. Radiator, built in wardrobe, carpet.
Bathroom (2.13m x 1.70m (7' x 5'7))
Double glazed window. Suite comprising of bath with shower attachment to tap and separate overhead electric shower, pedestal wash basin, low level wc, smooth ceiling, spotlight, part tiled walls, heated towel rail, laminate flooring.
Outdoor WC
Low level WC, tiled walls, vinyl flooring.
Rear Garden (25 (82'0"))
Slabbed seating area to the direct rear of the property with the remainder mainly laid to lawn, perimeter flower beds with shrubs, outside light, outside tap, timber outbuilding, outdoor WC.
Timber Outbuilding
In need of repair. Two separate rooms measuring: 15'10 x 6'9 and 15'10 x 6'9.
Viewing
Please contact us on 01708 963063 if you wish to arrange a viewing appointment for this property, or require further information.
Energy Performance Certificate
Click here to view the Energy Efficiency Rating and Environmental Impact Rating for this property.
Disclaimer
Noble Residential - CM13 endeavour to maintain accurate depictions of properties in Virtual Tours, Floor Plans and descriptions, however, these are intended only as a guide and purchasers must satisfy themselves by personal inspection.

