Full Description
Situated on a private drive and offered for sale with no onward chain is this beautifully presented four bedroom detached bungalow. Internally the property offers an entrance porch, two reception rooms, kitchen/breakfast room, utility room, four bedrooms one with an ensuite and a family bathroom. Externally there is a gated driveway for five cars, detached garage and a 65 ft rear garden.
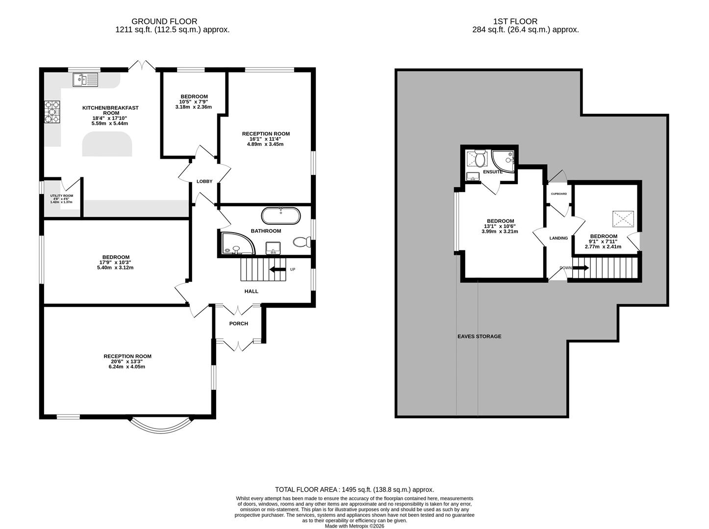
Entrance Porch
Double glazed French doors to porch with double glazed windows to either side, wooden flooring.
Entrance Hall
Double glazed French doors to porch with double glazed windows to either side, double glazed window to side, wooden flooring, stairs to first floor, under stairs cupboard, radiator, under stairs cupboard.
Reception Room One (6.25m x 4.04m (20'6 x 13'3 ))
Double glazed windows to side and front, three radiators, carpet.
Reception Room Two (4.90m x 3.45m (16'1 x 11'4))
Double glazed windows to rear and side, two radiators, coved ceiling, laminate flooring.
Kitchen/Breakfast Room (5.59m x 5.44m narrowing to 4.42m (18'4 x 17'10 na)
Double glazed French doors to rear, double glazed window to rear, wall and base units with granite work tops, single drainer sink, gas hob, oven, extractor, dishwasher, radiator and heated towel rail, LVT flooring.
Utility Room (1.42m x 1.37m (4'8 x 4'6))
Double glazed window to side, boiler, plumbing for washing machine, coved ceiling.
Bedroom Three (5.41m x 3.12m (17'9 x 10'3 ))
(Ground Floor). Double glazed window to side, radiator, carpet.
Bedroom Four (3.18m x 2.36m (10'5 x 7'9))
(Ground Floor). Double glazed window to rear, coved ceiling, radiator, laminate flooring.
Bathroom (3.43m x 1.80m (11'3 x 5'11))
Frosted double glazed window to side, low level WC, vanity wash hand basin, bath, shower cubicle, tiled flooring and walls, heated towel rail.
Landing
Cupboard, loft access, carpet.
Bedroom One (3.38m x 3.20m (11'1 x 10'6))
Double glazed window to side, radiator, carpet.
En-Suite
Double glazed sky light, low level WC, vanity wash hand basin, shower cubicle, extractor, radiator, tiled flooring.
Bedroom Two (2.77m x 2.41m (9'1 x 7'11))
Double glazed sky light, access to eaves storage, radiator, carpet.
Garden (19.81m x 9.14m (65' x 30'))
Side pedestrian access, patio area, lawn, outside tap, shed.
Parking
Gated driveway to front for five cars. Detached garage.
Viewing
Please contact us on 01708 963063 if you wish to arrange a viewing appointment for this property, or require further information.
Energy Performance Certificate
Click here to view the Energy Efficiency Rating and Environmental Impact Rating for this property.
Disclaimer
Noble Residential - CM13 endeavour to maintain accurate depictions of properties in Virtual Tours, Floor Plans and descriptions, however, these are intended only as a guide and purchasers must satisfy themselves by personal inspection.
Entrance Porch
Double glazed French doors to porch with double glazed windows to either side, wooden flooring.
Entrance Hall
Double glazed French doors to porch with double glazed windows to either side, double glazed window to side, wooden flooring, stairs to first floor, under stairs cupboard, radiator, under stairs cupboard.
Reception Room One (6.25m x 4.04m (20'6 x 13'3 ))
Double glazed windows to side and front, three radiators, carpet.
Reception Room Two (4.90m x 3.45m (16'1 x 11'4))
Double glazed windows to rear and side, two radiators, coved ceiling, laminate flooring.
Kitchen/Breakfast Room (5.59m x 5.44m narrowing to 4.42m (18'4 x 17'10 na)
Double glazed French doors to rear, double glazed window to rear, wall and base units with granite work tops, single drainer sink, gas hob, oven, extractor, dishwasher, radiator and heated towel rail, LVT flooring.
Utility Room (1.42m x 1.37m (4'8 x 4'6))
Double glazed window to side, boiler, plumbing for washing machine, coved ceiling.
Bedroom Three (5.41m x 3.12m (17'9 x 10'3 ))
(Ground Floor). Double glazed window to side, radiator, carpet.
Bedroom Four (3.18m x 2.36m (10'5 x 7'9))
(Ground Floor). Double glazed window to rear, coved ceiling, radiator, laminate flooring.
Bathroom (3.43m x 1.80m (11'3 x 5'11))
Frosted double glazed window to side, low level WC, vanity wash hand basin, bath, shower cubicle, tiled flooring and walls, heated towel rail.
Landing
Cupboard, loft access, carpet.
Bedroom One (3.38m x 3.20m (11'1 x 10'6))
Double glazed window to side, radiator, carpet.
En-Suite
Double glazed sky light, low level WC, vanity wash hand basin, shower cubicle, extractor, radiator, tiled flooring.
Bedroom Two (2.77m x 2.41m (9'1 x 7'11))
Double glazed sky light, access to eaves storage, radiator, carpet.
Garden (19.81m x 9.14m (65' x 30'))
Side pedestrian access, patio area, lawn, outside tap, shed.
Parking
Gated driveway to front for five cars. Detached garage.
Viewing
Please contact us on 01708 963063 if you wish to arrange a viewing appointment for this property, or require further information.
Energy Performance Certificate
Click here to view the Energy Efficiency Rating and Environmental Impact Rating for this property.
Disclaimer
Noble Residential - CM13 endeavour to maintain accurate depictions of properties in Virtual Tours, Floor Plans and descriptions, however, these are intended only as a guide and purchasers must satisfy themselves by personal inspection.

