Full Description
• * Guide Price - £300,000 - £325,000*•Two Double Bedrooms • One Allocated Parking Space• Ground Floor Maisonette •0.7 Miles to Romford Station•Private 25' Rear Garden• 157 Year Lease Remaining
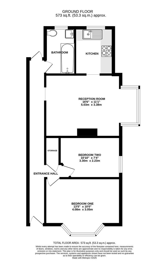
Entrance Hall (8.33m x 1.73m (27'4 x 5'8))
Entrance door, spotlights, door to rear, storage cupboard, carpet.
Bedroom One (4.09m x 3.05m (13'5 x 10'))
Double glazed window to front, radiator, carpet.
Bedroom Two (3.30m x 2.24m (10'10 x 7'4))
Double glazed window to side, radiator, carpet.
Reception Room (5.03m x 3.38m (16'6 x 11'1))
Double glazed window to side, feature fire place, radiator, carpet.
Kitchen (2.54m x 2.13m (8'4 x 7'))
Spotlights, wall and base units, four ring gas hob and oven, single drainer sink, integrated fridge/ freezer, double glazed window to rear, tiled flooring.
Bathroom (2.54m x 1.60m (8'4 x 5'3))
Spotlights, tiled walls and floors, double glazed window to rear, low level WC, wash hand basin, panelled bath.
Garden (7.62m (25'))
Paved garden, side pedestrian access, shed.
Parking
Shared driveway to front with one allocated space.
Viewing
Please contact us on 01708 963063 if you wish to arrange a viewing appointment for this property, or require further information.
Energy Performance Certificate
Click here to view the Energy Efficiency Rating and Environmental Impact Rating for this property.
Disclaimer
Noble Residential - CM13 endeavour to maintain accurate depictions of properties in Virtual Tours, Floor Plans and descriptions, however, these are intended only as a guide and purchasers must satisfy themselves by personal inspection.
Entrance Hall (8.33m x 1.73m (27'4 x 5'8))
Entrance door, spotlights, door to rear, storage cupboard, carpet.
Bedroom One (4.09m x 3.05m (13'5 x 10'))
Double glazed window to front, radiator, carpet.
Bedroom Two (3.30m x 2.24m (10'10 x 7'4))
Double glazed window to side, radiator, carpet.
Reception Room (5.03m x 3.38m (16'6 x 11'1))
Double glazed window to side, feature fire place, radiator, carpet.
Kitchen (2.54m x 2.13m (8'4 x 7'))
Spotlights, wall and base units, four ring gas hob and oven, single drainer sink, integrated fridge/ freezer, double glazed window to rear, tiled flooring.
Bathroom (2.54m x 1.60m (8'4 x 5'3))
Spotlights, tiled walls and floors, double glazed window to rear, low level WC, wash hand basin, panelled bath.
Garden (7.62m (25'))
Paved garden, side pedestrian access, shed.
Parking
Shared driveway to front with one allocated space.
Viewing
Please contact us on 01708 963063 if you wish to arrange a viewing appointment for this property, or require further information.
Energy Performance Certificate
Click here to view the Energy Efficiency Rating and Environmental Impact Rating for this property.
Disclaimer
Noble Residential - CM13 endeavour to maintain accurate depictions of properties in Virtual Tours, Floor Plans and descriptions, however, these are intended only as a guide and purchasers must satisfy themselves by personal inspection.

