Full Description
Guide Price £400,000 - £425,000 Ideally located for Romford town centre and Station is this two bedroom end of terrace cottage the accommodation includes entrance porch, open plan reception room, kitchen, ground floor bathroom, two double bedrooms on the first floor, and a loft. Externally there is a driveway to the front and a 125ft rear garden.
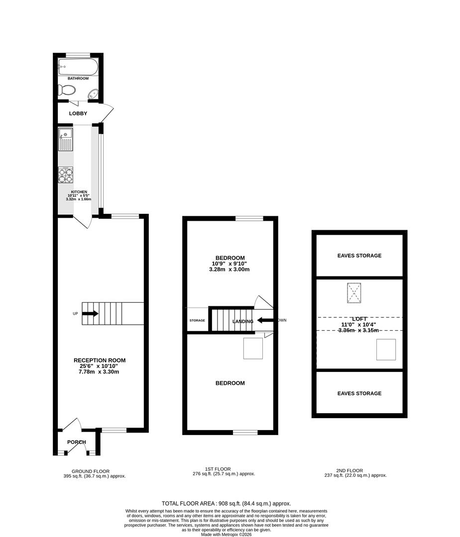
Entrance Porch
Entrance door, double glazed windows to front and side.
Reception Room (7.77m x 3.30m (25'6 x 10'10 ))
Double glazed windows to front and rear, two radiators, coved ceiling, laminate flooring, stairs to first floor.
Kitchen (3.33m x 1.65m (10'11 x 5'5))
Double glazed window to side, wall and base units, stainless steel single drainer sink, gas hob, oven, extractor, vinyl flooring.
Rear Lobby
Double glazed door to side, tiled floorimg.
Ground Floor Bathroom
Frosted double glazed window to rear, low level WC, wash hand basin, panelled bath with overhead shower, heated towel rail, tiled walls, vinyl flooring.
Landing
Carpet.
Bedroom One (3.61m x 3.25m (11'10 x 10'8 ))
Double glazed window to front, radiator, coved ceiling, carpet, access to loft area via a fold down ladder.
Bedroom Two (3.28m x 3.00m (10'9 x 9'10))
Double glazed window to rear, radiator, coved ceiling, carpet.
Loft (3.35m x 3.15m (11' x 10'4 ))
Double glazed sky light, carpet, access to eves storage.
Garden (38.10m (125))
Patio area leading to lawn.
Driveway
Driveway to front for one car.
Viewing
Please contact us on 01708 963063 if you wish to arrange a viewing appointment for this property, or require further information.
Energy Performance Certificate
Click here to view the Energy Efficiency Rating and Environmental Impact Rating for this property.
Disclaimer
Noble Residential - CM13 endeavour to maintain accurate depictions of properties in Virtual Tours, Floor Plans and descriptions, however, these are intended only as a guide and purchasers must satisfy themselves by personal inspection.
Entrance Porch
Entrance door, double glazed windows to front and side.
Reception Room (7.77m x 3.30m (25'6 x 10'10 ))
Double glazed windows to front and rear, two radiators, coved ceiling, laminate flooring, stairs to first floor.
Kitchen (3.33m x 1.65m (10'11 x 5'5))
Double glazed window to side, wall and base units, stainless steel single drainer sink, gas hob, oven, extractor, vinyl flooring.
Rear Lobby
Double glazed door to side, tiled floorimg.
Ground Floor Bathroom
Frosted double glazed window to rear, low level WC, wash hand basin, panelled bath with overhead shower, heated towel rail, tiled walls, vinyl flooring.
Landing
Carpet.
Bedroom One (3.61m x 3.25m (11'10 x 10'8 ))
Double glazed window to front, radiator, coved ceiling, carpet, access to loft area via a fold down ladder.
Bedroom Two (3.28m x 3.00m (10'9 x 9'10))
Double glazed window to rear, radiator, coved ceiling, carpet.
Loft (3.35m x 3.15m (11' x 10'4 ))
Double glazed sky light, carpet, access to eves storage.
Garden (38.10m (125))
Patio area leading to lawn.
Driveway
Driveway to front for one car.
Viewing
Please contact us on 01708 963063 if you wish to arrange a viewing appointment for this property, or require further information.
Energy Performance Certificate
Click here to view the Energy Efficiency Rating and Environmental Impact Rating for this property.
Disclaimer
Noble Residential - CM13 endeavour to maintain accurate depictions of properties in Virtual Tours, Floor Plans and descriptions, however, these are intended only as a guide and purchasers must satisfy themselves by personal inspection.

