Full Description
• Guide Price £450,000 to £475,000•Extended •Three Bedrooms • Private Driveway • Mid Terraced•1.4 Miles To Emerson Park Station• 100' Rear Garden•Potential To Extend Further STPP
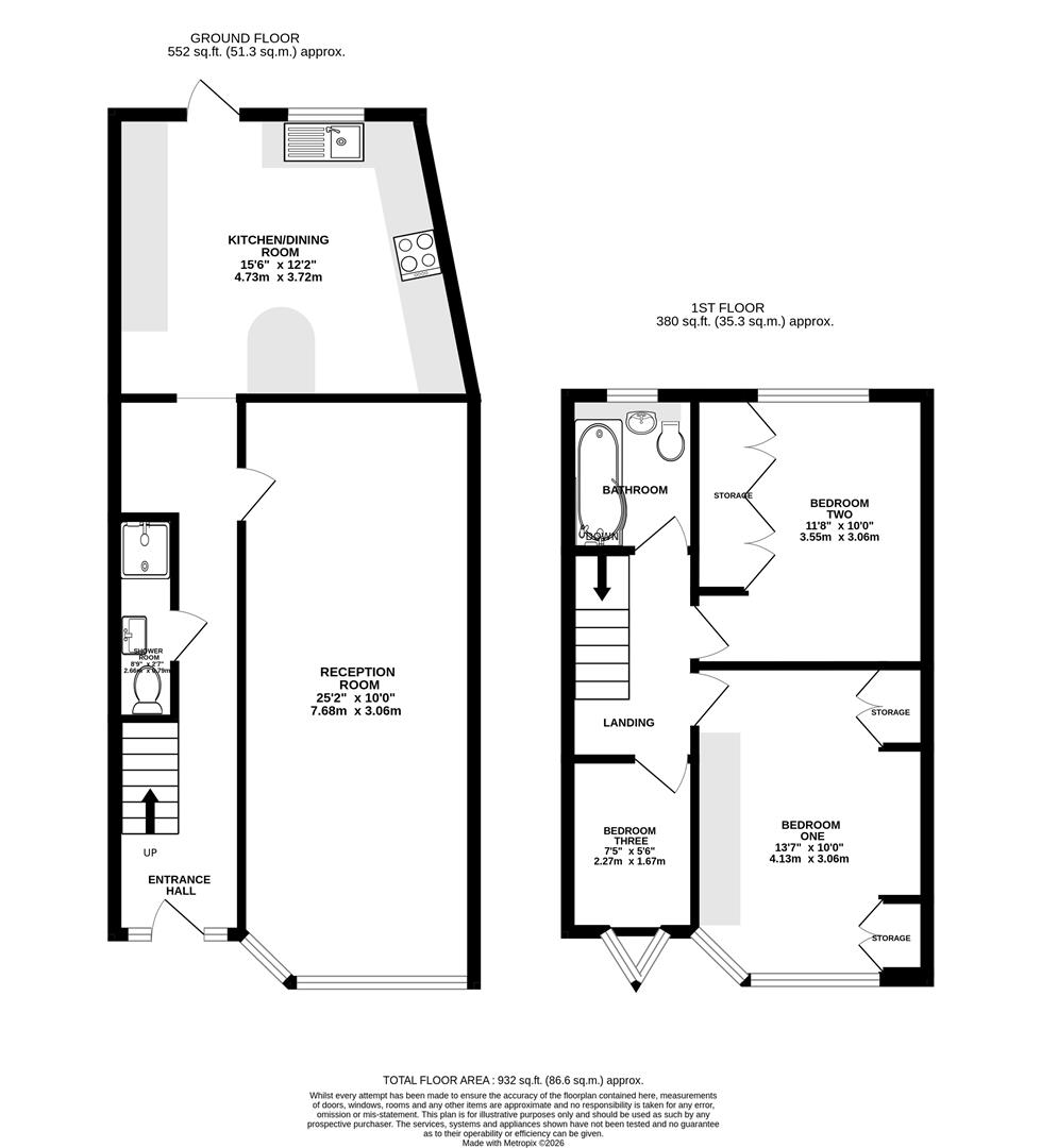
Entrance Hall
Entrance door, oak flooring, spotlights, radiator.
Reception Room (7.67m x 3.05m (25'2 x 10'))
Double glazed bay window to front, oak flooring, two radiators.
Ground Floor Shower Room (2.62m x 0.74m (8'7 x 2'5))
Spotlights, low level WC, vanity wash hand basin, shower cubicle, heated towel rail, tiled flooring.
Kitchen/Dining Room (4.72m x 3.71m (15'6 x 12'2))
Spotlights, wall and base units, single drainer sink, double glazed window to rear, double glazed door to rear, dishwasher, double oven, electric hob, underfloor heating, tiled flooring.
Landing (2.74m x 1.70m (9' x 5'7))
Loft access, carpet.
Bedroom One (4.14m x 3.05m (13'7 x 10'))
Double glazed bay window to front, built in wardrobes, radiator, laminate flooring.
Bedroom Two (3.56m x 3.05m (11'8 x 10'))
Double glazed window to rear, built in wardrobes, radiator, laminate flooring.
Bedroom Three (2.26m x 1.68m (7'5 x 5'6))
Double glazed oriel window to front, radiator, carpet.
Bathroom (2.03m x 1.68m (6'8 x 5'6))
Double glazed window to rear, spotlights, low level WC, vanity wash hand basin, pea shaped bath, tiled walls and flooring, heated towel rail.
Garden (30.48m (100'))
Part paved and part laid to lawn, shed.
Driveway
Paved driveway for one car.
Viewing
Please contact us on 01708 963063 if you wish to arrange a viewing appointment for this property, or require further information.
Energy Performance Certificate
Click here to view the Energy Efficiency Rating and Environmental Impact Rating for this property.
Disclaimer
Noble Residential - CM13 endeavour to maintain accurate depictions of properties in Virtual Tours, Floor Plans and descriptions, however, these are intended only as a guide and purchasers must satisfy themselves by personal inspection.
Entrance Hall
Entrance door, oak flooring, spotlights, radiator.
Reception Room (7.67m x 3.05m (25'2 x 10'))
Double glazed bay window to front, oak flooring, two radiators.
Ground Floor Shower Room (2.62m x 0.74m (8'7 x 2'5))
Spotlights, low level WC, vanity wash hand basin, shower cubicle, heated towel rail, tiled flooring.
Kitchen/Dining Room (4.72m x 3.71m (15'6 x 12'2))
Spotlights, wall and base units, single drainer sink, double glazed window to rear, double glazed door to rear, dishwasher, double oven, electric hob, underfloor heating, tiled flooring.
Landing (2.74m x 1.70m (9' x 5'7))
Loft access, carpet.
Bedroom One (4.14m x 3.05m (13'7 x 10'))
Double glazed bay window to front, built in wardrobes, radiator, laminate flooring.
Bedroom Two (3.56m x 3.05m (11'8 x 10'))
Double glazed window to rear, built in wardrobes, radiator, laminate flooring.
Bedroom Three (2.26m x 1.68m (7'5 x 5'6))
Double glazed oriel window to front, radiator, carpet.
Bathroom (2.03m x 1.68m (6'8 x 5'6))
Double glazed window to rear, spotlights, low level WC, vanity wash hand basin, pea shaped bath, tiled walls and flooring, heated towel rail.
Garden (30.48m (100'))
Part paved and part laid to lawn, shed.
Driveway
Paved driveway for one car.
Viewing
Please contact us on 01708 963063 if you wish to arrange a viewing appointment for this property, or require further information.
Energy Performance Certificate
Click here to view the Energy Efficiency Rating and Environmental Impact Rating for this property.
Disclaimer
Noble Residential - CM13 endeavour to maintain accurate depictions of properties in Virtual Tours, Floor Plans and descriptions, however, these are intended only as a guide and purchasers must satisfy themselves by personal inspection.

