Full Description
•Extended End Terrace House•Four/Five Bedrooms•Two Bathrooms•Driveway For Multiple Vehicles•73ft East Facing Rear Garden with Garden Room & Entertaining Area•Side Access to Rear Garden•27 Min Walk to Romford Station (source: google maps)
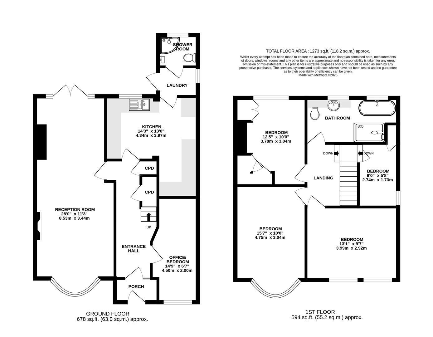
Porch
Entrance door. Smooth ceiling, wall lights, laminate flooring.
Entrance Hall
Entrance door, double glazed window. Smooth ceiling, coving, radiator, stairs to first floor, two cupboards under stairs, laminate flooring.
Reception Room (8.53m x 3.43m max sizes (28' x 11'3 max sizes))
Double glazed bay window to front aspect and double glazed patio doors to rear garden. Smooth ceiling, coving, radiator, laminate flooring.
Kitchen (4.34m x 3.96m max sizes (14'3 x 13' max sizes))
Double glazed window. Range of gloss white base and eye level wall cabinets with black worktops, composite 1.5 bowl sink with spray tap, integrated microwave and wine cooler, overhead extractor hood and fan, smooth ceiling, spotlights, wall mounted Vaillant boiler, splashback tiles, LED plinth lighting, vinyl tiles to floor.
Laundry Lobby (1.73m x 1.27m (5'8 x 4'2))
Double glazed window, double glazed door to rear garden. Smooth ceiling, spotlights, radiator, plumbing and power for washing machine and tumble dryer.
Shower Room (1.73m x 1.37m (5'8 x 4'6))
Double glazed window. Suite comprising of corner shower cubicle with handheld and waterfall heads, low level wc, wash hand basin with cupboard beneath, smooth ceiling, spotlights, tiled walls, tiled floor.
Office/Bedroom (4.50m x 2.01m max sizes (14'9 x 6'7 max sizes))
Double glazed oriel window. Smooth ceiling, coving, radiator, laminate flooring.
First Floor Landing
Smooth ceiling, coving, accees to loft, carpet.
Bedroom (4.75m x 3.05m max sizes (15'7 x 10' max sizes))
Double glazed bay window. Smooth ceiling, radiator, laminate flooring.
Bedroom (3.78m x 3.05m max sizes (12'5 x 10' max sizes))
Double glazed window. Smooth ceiling, coving, radiator, built in wardrobes with mirrored doors, laminate flooring.
Bedroom (3.99m x 2.92m (13'1 x 9'7))
Two double glazed oriel windows. Smooth ceiling, coving, radiator, laminate flooring.
Bedroom (2.74m x 1.73m (9' x 5'8))
Double glazed window. Smooth ceiling, coving, built in cupboard, electric heater, laminate flooring.
Bathroom (3.99m x 1.93m (13'1 x 6'4))
Two double glazed windows. Suite comprising of bath, separate shower cubicle with handheld and waterfall heads, low level wc and wash basin with drawers and cupboards beneath, smooth ceiling, spotlights, extractor, tiled walls, heated towel rail, vinyl flooring.
Rear Garden - East Facing (22.25m approx (73' approx ))
To the direct rear of the property is a covered seating area with heaters and Indian sandstone slabs, outside power and lighting, footpath leading to the end of the garden where there is a further block paved seating area and entertaining area, outdoor bar, garden room and two sheds, artificial lawn area, pedestrian side access via gate.
Garden Room (4.37m x 3.20m (14'4 x 10'6))
Windows to two aspects and double doors. Fan & light unit to ceiling, power points.
Parking
Crazy paved drive to front via dropped kerb for multiple vehicles.
Viewing
Please contact us on 01708 963063 if you wish to arrange a viewing appointment for this property, or require further information.
Energy Performance Certificate
Click here to view the Energy Efficiency Rating and Environmental Impact Rating for this property.
Disclaimer
Noble Residential - CM13 endeavour to maintain accurate depictions of properties in Virtual Tours, Floor Plans and descriptions, however, these are intended only as a guide and purchasers must satisfy themselves by personal inspection.
Porch
Entrance door. Smooth ceiling, wall lights, laminate flooring.
Entrance Hall
Entrance door, double glazed window. Smooth ceiling, coving, radiator, stairs to first floor, two cupboards under stairs, laminate flooring.
Reception Room (8.53m x 3.43m max sizes (28' x 11'3 max sizes))
Double glazed bay window to front aspect and double glazed patio doors to rear garden. Smooth ceiling, coving, radiator, laminate flooring.
Kitchen (4.34m x 3.96m max sizes (14'3 x 13' max sizes))
Double glazed window. Range of gloss white base and eye level wall cabinets with black worktops, composite 1.5 bowl sink with spray tap, integrated microwave and wine cooler, overhead extractor hood and fan, smooth ceiling, spotlights, wall mounted Vaillant boiler, splashback tiles, LED plinth lighting, vinyl tiles to floor.
Laundry Lobby (1.73m x 1.27m (5'8 x 4'2))
Double glazed window, double glazed door to rear garden. Smooth ceiling, spotlights, radiator, plumbing and power for washing machine and tumble dryer.
Shower Room (1.73m x 1.37m (5'8 x 4'6))
Double glazed window. Suite comprising of corner shower cubicle with handheld and waterfall heads, low level wc, wash hand basin with cupboard beneath, smooth ceiling, spotlights, tiled walls, tiled floor.
Office/Bedroom (4.50m x 2.01m max sizes (14'9 x 6'7 max sizes))
Double glazed oriel window. Smooth ceiling, coving, radiator, laminate flooring.
First Floor Landing
Smooth ceiling, coving, accees to loft, carpet.
Bedroom (4.75m x 3.05m max sizes (15'7 x 10' max sizes))
Double glazed bay window. Smooth ceiling, radiator, laminate flooring.
Bedroom (3.78m x 3.05m max sizes (12'5 x 10' max sizes))
Double glazed window. Smooth ceiling, coving, radiator, built in wardrobes with mirrored doors, laminate flooring.
Bedroom (3.99m x 2.92m (13'1 x 9'7))
Two double glazed oriel windows. Smooth ceiling, coving, radiator, laminate flooring.
Bedroom (2.74m x 1.73m (9' x 5'8))
Double glazed window. Smooth ceiling, coving, built in cupboard, electric heater, laminate flooring.
Bathroom (3.99m x 1.93m (13'1 x 6'4))
Two double glazed windows. Suite comprising of bath, separate shower cubicle with handheld and waterfall heads, low level wc and wash basin with drawers and cupboards beneath, smooth ceiling, spotlights, extractor, tiled walls, heated towel rail, vinyl flooring.
Rear Garden - East Facing (22.25m approx (73' approx ))
To the direct rear of the property is a covered seating area with heaters and Indian sandstone slabs, outside power and lighting, footpath leading to the end of the garden where there is a further block paved seating area and entertaining area, outdoor bar, garden room and two sheds, artificial lawn area, pedestrian side access via gate.
Garden Room (4.37m x 3.20m (14'4 x 10'6))
Windows to two aspects and double doors. Fan & light unit to ceiling, power points.
Parking
Crazy paved drive to front via dropped kerb for multiple vehicles.
Viewing
Please contact us on 01708 963063 if you wish to arrange a viewing appointment for this property, or require further information.
Energy Performance Certificate
Click here to view the Energy Efficiency Rating and Environmental Impact Rating for this property.
Disclaimer
Noble Residential - CM13 endeavour to maintain accurate depictions of properties in Virtual Tours, Floor Plans and descriptions, however, these are intended only as a guide and purchasers must satisfy themselves by personal inspection.

