Full Description
• Guide Price £550,000 - £575,000•Extended •Three Bedrooms •Driveway For Three Cars • Semi Detached•0.8 Miles to Romford Station•50' Rear Garden•Potential To Extend Further STPP•Outbuilding With Power
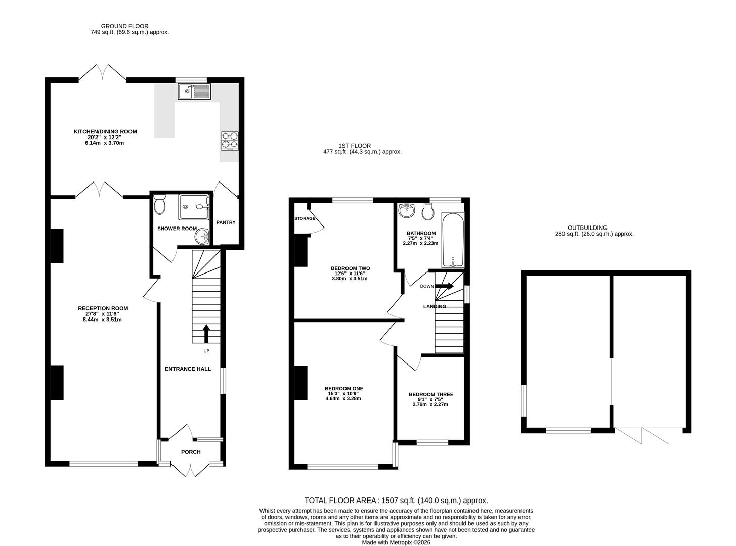
Porch (2.03m x 0.76m (6'8 x 2'6))
French doors, double glazed window to front and side.
Entrance Hall (6.10m x 2.26m (20' x 7'5))
Entrance door, window to side, radiator, carpet.
Reception Room (8.43m x 3.51m (27'8 x 11'6))
Double glazed window to front, gas fireplace, carpet.
Kitchen/ Dining Room (6.15m x 3.71m (20'2 x 12'2))
Spotlights, vinyl flooring, double glazed window to rear, French doors to rear, wall and base units, single drainer sink, five ring gas hob, double oven, radiator, door into pantry area.
Downstairs Shower Room (1.91m x 1.73m (6'3 x 5'8))
Shower cubicle, tiled walls and floor, low level WC, vanity hand was basin, radiator.
Landing
Double glazed window to side, Loft access.
Bedroom One (4.65m x 3.28m (15'3 x 10'9))
Double glazed window to front, radiator, carpet.
Bedroom Two (3.81m x 3.51m (12'6 x 11'6))
Double glazed window to rear, radiator, carpet.
Bedroom Three (2.77m x 2.26m (9'1 x 7'5))
Double glazed window to front, carpet, radiator.
Bathroom (2.26m x 2.24m (7'5 x 7'4))
Tiled walls and flooring, double glazed window to rear, low level WC, panelled bath, vanity hand wash basin.
Garden (15.24m (50'))
South facing, side pedestrian access, part paved and part laid to lawn, shed, outbuilding.
Outbuilding (4.98m x 2.79m (16'4 x 9'2))
Bi-folding doors, double glazed window to front and side, power, carpet
Parking
Driveway with EV charger.
Viewing
Please contact us on 01708 963063 if you wish to arrange a viewing appointment for this property, or require further information.
Energy Performance Certificate
Click here to view the Energy Efficiency Rating and Environmental Impact Rating for this property.
Disclaimer
Noble Residential - CM13 endeavour to maintain accurate depictions of properties in Virtual Tours, Floor Plans and descriptions, however, these are intended only as a guide and purchasers must satisfy themselves by personal inspection.
Porch (2.03m x 0.76m (6'8 x 2'6))
French doors, double glazed window to front and side.
Entrance Hall (6.10m x 2.26m (20' x 7'5))
Entrance door, window to side, radiator, carpet.
Reception Room (8.43m x 3.51m (27'8 x 11'6))
Double glazed window to front, gas fireplace, carpet.
Kitchen/ Dining Room (6.15m x 3.71m (20'2 x 12'2))
Spotlights, vinyl flooring, double glazed window to rear, French doors to rear, wall and base units, single drainer sink, five ring gas hob, double oven, radiator, door into pantry area.
Downstairs Shower Room (1.91m x 1.73m (6'3 x 5'8))
Shower cubicle, tiled walls and floor, low level WC, vanity hand was basin, radiator.
Landing
Double glazed window to side, Loft access.
Bedroom One (4.65m x 3.28m (15'3 x 10'9))
Double glazed window to front, radiator, carpet.
Bedroom Two (3.81m x 3.51m (12'6 x 11'6))
Double glazed window to rear, radiator, carpet.
Bedroom Three (2.77m x 2.26m (9'1 x 7'5))
Double glazed window to front, carpet, radiator.
Bathroom (2.26m x 2.24m (7'5 x 7'4))
Tiled walls and flooring, double glazed window to rear, low level WC, panelled bath, vanity hand wash basin.
Garden (15.24m (50'))
South facing, side pedestrian access, part paved and part laid to lawn, shed, outbuilding.
Outbuilding (4.98m x 2.79m (16'4 x 9'2))
Bi-folding doors, double glazed window to front and side, power, carpet
Parking
Driveway with EV charger.
Viewing
Please contact us on 01708 963063 if you wish to arrange a viewing appointment for this property, or require further information.
Energy Performance Certificate
Click here to view the Energy Efficiency Rating and Environmental Impact Rating for this property.
Disclaimer
Noble Residential - CM13 endeavour to maintain accurate depictions of properties in Virtual Tours, Floor Plans and descriptions, however, these are intended only as a guide and purchasers must satisfy themselves by personal inspection.

