Full Description
• Guide Price £450,000 - £475,000•Two Double Bedrooms •Driveway & Garage• Semi Detached •40 ft Rear Garden•Potential To Extend STPP
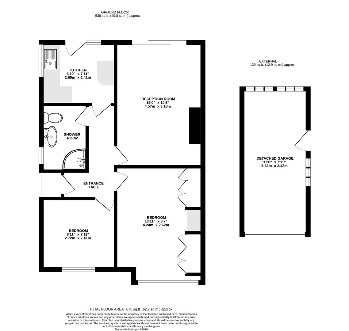
Entrance Hall
Frosted double glazed entrance door, loft access, radiator, laminate flooring.
Reception Room (4.52m x 3.18m (14'10 x 10'5))
Double glazed patio doors to rear, radiator, coved ceiling, carpet.
Kitchen (4.24m x 2.62m (13'11 x 8'7 ))
Double glazed windows to side and rear, frosted double glazed door to rear, wall and base units, stainless steel single drainer sink, plumbing for washing machine, radiator, part tiled walls,, laminate flooring.
Bedroom One (4.24m x 2.62m (13'11 x 8'7))
Double glazed window to front, fitted wardrobes, radiator, coved ceiling, carpet.
Bedroom Two (2.72m x 2.41m (8'11 x 7'11))
Double glazed window to front, radiator, coved ceiling, laminate flooring.
Shower Room
Frosted double glazed window to side, low level WC, vanity wash hand basin, shower cubicle, heated towel rail, boiler, part tiled walls, laminate flooring.
Garden (16.76m (55'))
Patio area, lawn, outside tap, shed.
Driveway & Garage
Driveway leading to detached garage with power, light and electric door (17'6 x 7'11).
Viewing
Please contact us on 01708 963063 if you wish to arrange a viewing appointment for this property, or require further information.
Energy Performance Certificate
Click here to view the Energy Efficiency Rating and Environmental Impact Rating for this property.
Disclaimer
Noble Residential - CM13 endeavour to maintain accurate depictions of properties in Virtual Tours, Floor Plans and descriptions, however, these are intended only as a guide and purchasers must satisfy themselves by personal inspection.
Entrance Hall
Frosted double glazed entrance door, loft access, radiator, laminate flooring.
Reception Room (4.52m x 3.18m (14'10 x 10'5))
Double glazed patio doors to rear, radiator, coved ceiling, carpet.
Kitchen (4.24m x 2.62m (13'11 x 8'7 ))
Double glazed windows to side and rear, frosted double glazed door to rear, wall and base units, stainless steel single drainer sink, plumbing for washing machine, radiator, part tiled walls,, laminate flooring.
Bedroom One (4.24m x 2.62m (13'11 x 8'7))
Double glazed window to front, fitted wardrobes, radiator, coved ceiling, carpet.
Bedroom Two (2.72m x 2.41m (8'11 x 7'11))
Double glazed window to front, radiator, coved ceiling, laminate flooring.
Shower Room
Frosted double glazed window to side, low level WC, vanity wash hand basin, shower cubicle, heated towel rail, boiler, part tiled walls, laminate flooring.
Garden (16.76m (55'))
Patio area, lawn, outside tap, shed.
Driveway & Garage
Driveway leading to detached garage with power, light and electric door (17'6 x 7'11).
Viewing
Please contact us on 01708 963063 if you wish to arrange a viewing appointment for this property, or require further information.
Energy Performance Certificate
Click here to view the Energy Efficiency Rating and Environmental Impact Rating for this property.
Disclaimer
Noble Residential - CM13 endeavour to maintain accurate depictions of properties in Virtual Tours, Floor Plans and descriptions, however, these are intended only as a guide and purchasers must satisfy themselves by personal inspection.

