Full Description
•Mid Terraced •Three Bedrooms•In Need Of Modernisation •Chain Free•Driveway• Potential To Extend STPP • 0.8 Miles To Emerson Park Station
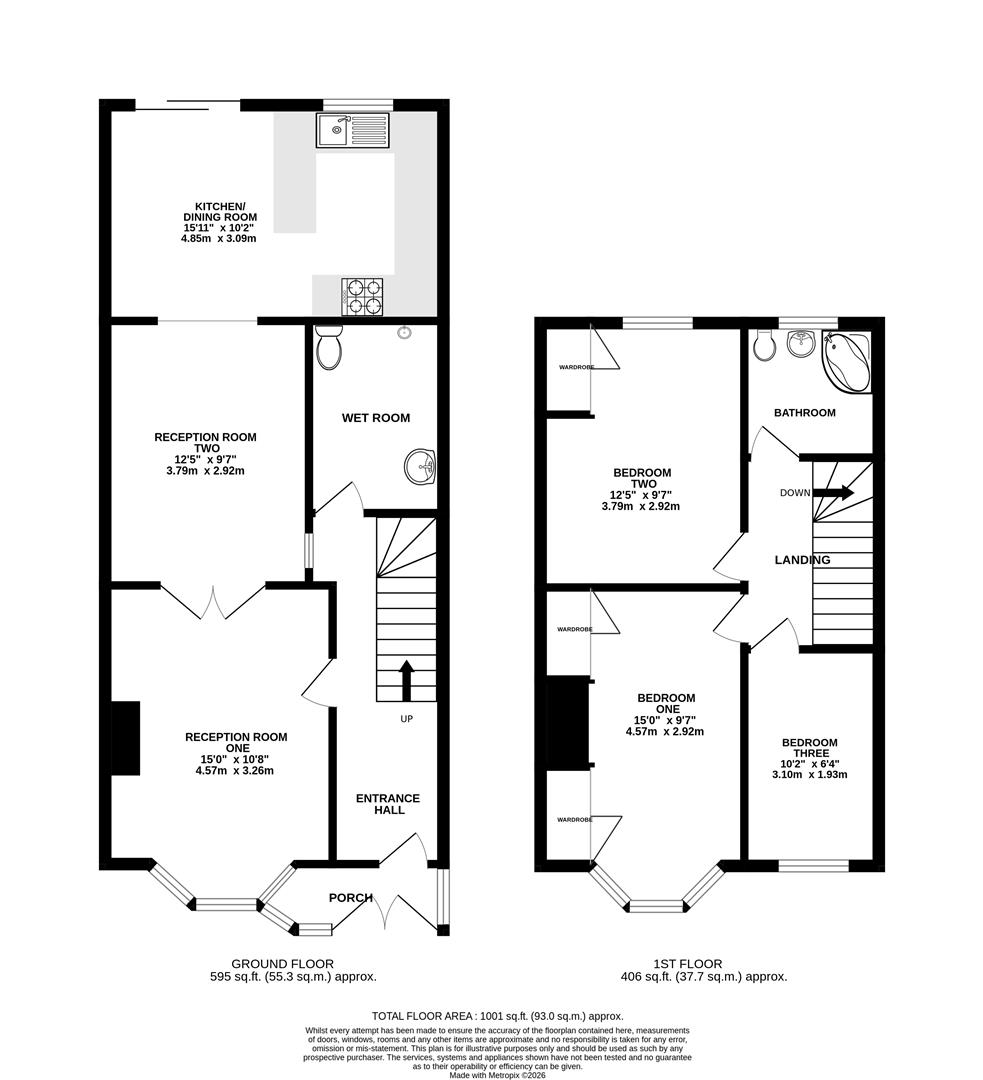
Porch (2.64m x 0.91m (8'8 x 3'))
French doors, double glazed windows to side and front, spotlights, tiled flooring.
Entrance Hall (5.03m x 1.93m (16'6 x 6'4))
Entrance door, radiator, carpet.
Reception Room One (4.57m x 3.25m (15' x 10'8))
Double glazed bay window to front, electric fireplace, French doors opening to reception room two, radiator.
Reception Room Two (3.78m x 2.92m (12'5 x 9'7))
French doors opening to reception room one, laminate flooring, frosted window to side.
Kitchen/ Dining Room (4.85m x 3.10m (15'11 x 10'2))
Spotlights, double glazed sliding door to rear, double glazed window to rear, wall and base units, single drainer sink, double oven, four ring electric hob, radiator, tiled flooring.
Wet Room (2.74m x 1.96m (9' x 6'5))
Shower, low level WC, wash hand basin, vinyl flooring.
Landing (2.62m x 1.83m (8'7 x 6'))
Loft access, carpet.
Bedroom One (4.57m x 2.92m (15' x 9'7))
Double glazed bay window to front, built in wardrobes, radiator, carpet.
Bedroom Two (3.78m x 2.92m (12'5 x 9'7))
Double glazed window to rear, built in wardrobe, radiator, carpet.
Bedroom Three (3.10m x 1.93m (10'2 x 6'4))
Double glazed window to front, radiator, carpet.
Bathroom (1.93m x 1.93m (6'4 x 6'4))
Double glazed window to rear, tiled floor and walls, corner bath, low level WC, wash hand basin, radiator.
Garden (27.43m (90'))
Part paved, part decked, part laid to lawn, two sheds.
Parking
Paved driveway for two cars.
Viewing
Please contact us on 01708 963063 if you wish to arrange a viewing appointment for this property, or require further information.
Energy Performance Certificate
Click here to view the Energy Efficiency Rating and Environmental Impact Rating for this property.
Disclaimer
Noble Residential - CM13 endeavour to maintain accurate depictions of properties in Virtual Tours, Floor Plans and descriptions, however, these are intended only as a guide and purchasers must satisfy themselves by personal inspection.
Porch (2.64m x 0.91m (8'8 x 3'))
French doors, double glazed windows to side and front, spotlights, tiled flooring.
Entrance Hall (5.03m x 1.93m (16'6 x 6'4))
Entrance door, radiator, carpet.
Reception Room One (4.57m x 3.25m (15' x 10'8))
Double glazed bay window to front, electric fireplace, French doors opening to reception room two, radiator.
Reception Room Two (3.78m x 2.92m (12'5 x 9'7))
French doors opening to reception room one, laminate flooring, frosted window to side.
Kitchen/ Dining Room (4.85m x 3.10m (15'11 x 10'2))
Spotlights, double glazed sliding door to rear, double glazed window to rear, wall and base units, single drainer sink, double oven, four ring electric hob, radiator, tiled flooring.
Wet Room (2.74m x 1.96m (9' x 6'5))
Shower, low level WC, wash hand basin, vinyl flooring.
Landing (2.62m x 1.83m (8'7 x 6'))
Loft access, carpet.
Bedroom One (4.57m x 2.92m (15' x 9'7))
Double glazed bay window to front, built in wardrobes, radiator, carpet.
Bedroom Two (3.78m x 2.92m (12'5 x 9'7))
Double glazed window to rear, built in wardrobe, radiator, carpet.
Bedroom Three (3.10m x 1.93m (10'2 x 6'4))
Double glazed window to front, radiator, carpet.
Bathroom (1.93m x 1.93m (6'4 x 6'4))
Double glazed window to rear, tiled floor and walls, corner bath, low level WC, wash hand basin, radiator.
Garden (27.43m (90'))
Part paved, part decked, part laid to lawn, two sheds.
Parking
Paved driveway for two cars.
Viewing
Please contact us on 01708 963063 if you wish to arrange a viewing appointment for this property, or require further information.
Energy Performance Certificate
Click here to view the Energy Efficiency Rating and Environmental Impact Rating for this property.
Disclaimer
Noble Residential - CM13 endeavour to maintain accurate depictions of properties in Virtual Tours, Floor Plans and descriptions, however, these are intended only as a guide and purchasers must satisfy themselves by personal inspection.

