Full Description
• In Need of Renovation •Three Bedrooms •Chain Free •Driveway For Two Cars • Semi Detached •1.1Miles to Emerson Park Station•90' Rear Garden•Potential To Extend STPP
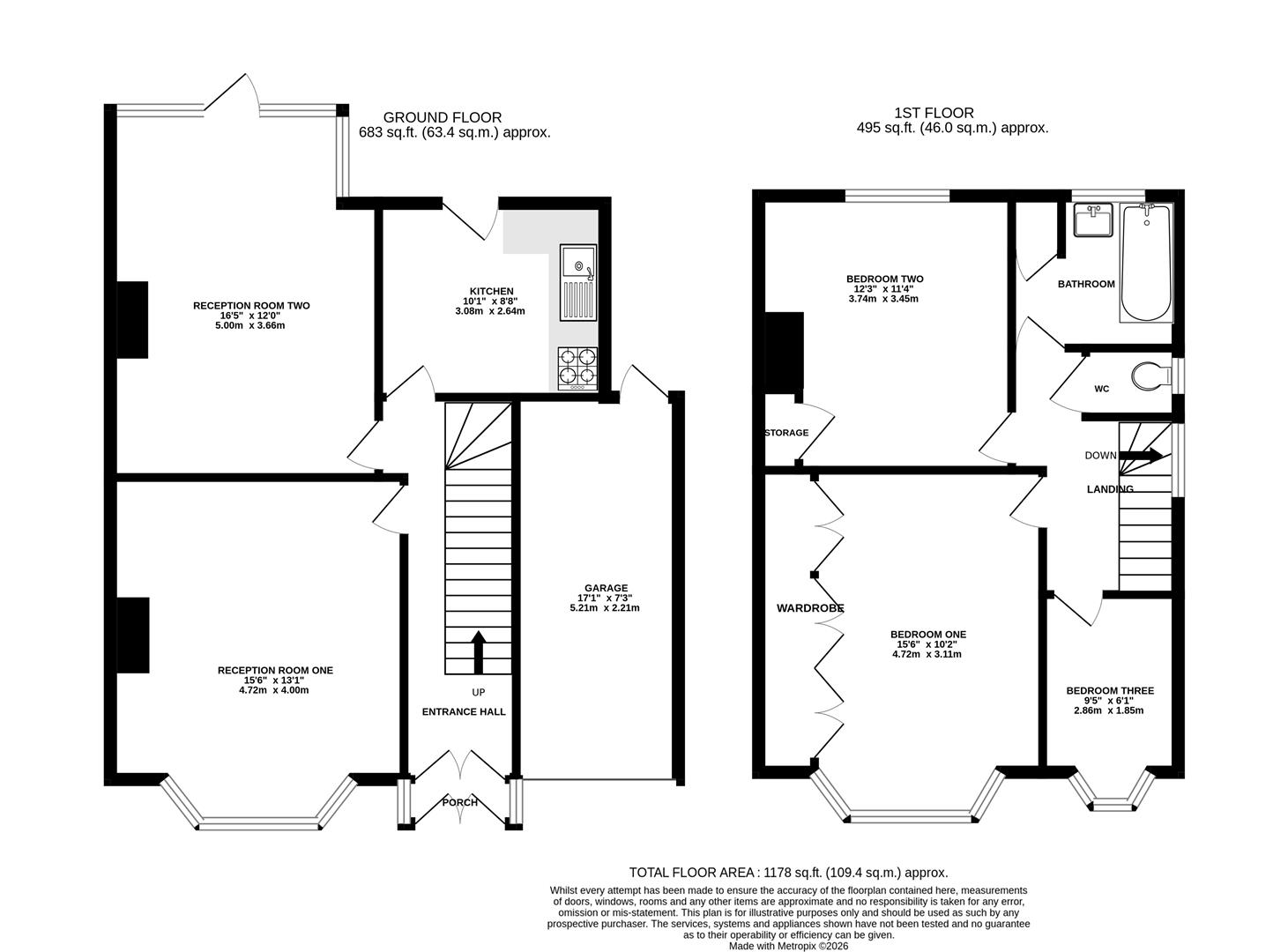
Porch
Double glazed French doors, Double glazed window to side, tiled flooring.
Entrance Hall (5.21m x 1.83m (17'1 x 6'))
Entrance door, radiator, carpet.
Reception Room One (4.72m x 3.99m (15'6 x 13'1))
Double glazed bay window to front, electric fireplace, carpet, radiator.
Reception Room Two (5.00m x 3.66m (16'5 x 12'))
Double glazed window to rear, double glazed door to rear, gas fireplace, radiator, carpet.
Kitchen (3.07m x 2.64m (10'1 x 8'8))
Wall and base units, double glazed window to side, double glazed door to rear, vinyl flooring, single drainer sink, four ring gas hob, storage cupboard.
Landing (2.18m x 3.53m (7'2 x 11'7))
Double glazed window to side, loft access, carpet.
Bedroom One (4.72m x 3.10m (15'6 x 10'2))
Double glazed window to front, built in wardrobes, radiator, carpet.
Bedroom Two (3.73m x 3.45m (12'3 x 11'4 ))
Double glazed window to rear, built in wardrobe, radiator, carpet.
Bedroom Three (2.87m x 1.85m (9'5 x 6'1))
Double glazed bay window to front, radiator, carpet.
Bathroom (2.26m x 1.85m (7'5 x 6'1))
Double glazed window to rear, tiled walls and flooring, panelled bath, vanity hand wash basin, storage, heated towel rail.
WC (1.35m x 0.91m (4'5 x 3'0))
Double glazed window to side, lowl level WC, carpet.
Garden (27.43m (90'))
Part paved part laid to lawn.
Driveway & Garage
Driveway for two cars, attached garage.
Viewing
Please contact us on 01708 963063 if you wish to arrange a viewing appointment for this property, or require further information.
Energy Performance Certificate
Click here to view the Energy Efficiency Rating and Environmental Impact Rating for this property.
Disclaimer
Noble Residential - CM13 endeavour to maintain accurate depictions of properties in Virtual Tours, Floor Plans and descriptions, however, these are intended only as a guide and purchasers must satisfy themselves by personal inspection.
Porch
Double glazed French doors, Double glazed window to side, tiled flooring.
Entrance Hall (5.21m x 1.83m (17'1 x 6'))
Entrance door, radiator, carpet.
Reception Room One (4.72m x 3.99m (15'6 x 13'1))
Double glazed bay window to front, electric fireplace, carpet, radiator.
Reception Room Two (5.00m x 3.66m (16'5 x 12'))
Double glazed window to rear, double glazed door to rear, gas fireplace, radiator, carpet.
Kitchen (3.07m x 2.64m (10'1 x 8'8))
Wall and base units, double glazed window to side, double glazed door to rear, vinyl flooring, single drainer sink, four ring gas hob, storage cupboard.
Landing (2.18m x 3.53m (7'2 x 11'7))
Double glazed window to side, loft access, carpet.
Bedroom One (4.72m x 3.10m (15'6 x 10'2))
Double glazed window to front, built in wardrobes, radiator, carpet.
Bedroom Two (3.73m x 3.45m (12'3 x 11'4 ))
Double glazed window to rear, built in wardrobe, radiator, carpet.
Bedroom Three (2.87m x 1.85m (9'5 x 6'1))
Double glazed bay window to front, radiator, carpet.
Bathroom (2.26m x 1.85m (7'5 x 6'1))
Double glazed window to rear, tiled walls and flooring, panelled bath, vanity hand wash basin, storage, heated towel rail.
WC (1.35m x 0.91m (4'5 x 3'0))
Double glazed window to side, lowl level WC, carpet.
Garden (27.43m (90'))
Part paved part laid to lawn.
Driveway & Garage
Driveway for two cars, attached garage.
Viewing
Please contact us on 01708 963063 if you wish to arrange a viewing appointment for this property, or require further information.
Energy Performance Certificate
Click here to view the Energy Efficiency Rating and Environmental Impact Rating for this property.
Disclaimer
Noble Residential - CM13 endeavour to maintain accurate depictions of properties in Virtual Tours, Floor Plans and descriptions, however, these are intended only as a guide and purchasers must satisfy themselves by personal inspection.

