Full Description
Guide Price £850,000 - £900,000Nestled in the desirable area of Hyland Close, Hornchurch, on a plot exceeding 1/3 of an acre is this impressive semi-detached home offers a perfect blend of space and comfort for family living. Spanning an expansive 2,243 square feet, the property boasts four reception rooms and five bedrooms. Further benefits include two modern bathrooms, utility room and kitchen/diner. Externally there is a driveway and garage and a rear garden measuring 165' x 164'.
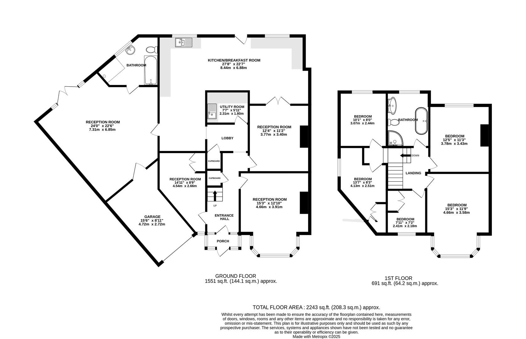
Entrance Porch
Entrance door, double glazed windows to front and side, tiled flooring.
Entrance Hall
Door to porch, understair cupboard, stairs to first floor, radiator, coved ceiling, Amtico flooring.
Utility Room (2.31m x 1.80m (7'7 x 5'11))
Stainless steel single drainer sink, wall and base units, plumbing for washing machine, tiled flooring.
Reception Room One (4.65m x 3.91m (15'3 x 12'10))
Double glazed bay window to front, feature fire surround, radiator, coved ceiling, laminate flooring.
Reception Room Two (3.76m x 3.40m (12'4 x 11'2))
French doors to kitchen/diner, feature fire surround, radiator, coved ceiling, laminate flooring.
Reception Room Three (4.55m x 2.67m at max (14'11 x 8'9 at max))
Double glazed window to front, cupboard, radiator, coved ceiling, laminate flooring.
Reception Room Four (irregular shape 7.32m x 6.86m at max (irregular s)
Double glazed double doors to rear, access to garage, two radiators, coved ceiling, laminate flooring.
Kitchen/Diner (8.43m x 6.88m narrowing to 3.10m (27'8 x 22'7 nar)
Two double glazed windows to rear, part double glazed door to rear, wall and base units, single drainer sink, gas cooker point, dishwasher, boiler, tiled walls, radiator, tiled flooring.
Ground Floor Bathroom
Frosted double glazed window to rear, low level WC, pedestal wash hand basin, walk in shower enclosure, bath, heated towel rail, tiled walls, tiled flooring.
Landing
Loft access, coved ceiling, carpet.
Bedroom One (4.65m x 3.58m (15'3 x 11'9))
Double glazed bay window to front, radiator, coved ceiling, carpet.
Bedroom Two (3.78m x 3.43m (12'5 x 11'3 ))
Double glazed window to rear, feature fire surround, radiator, coved ceiling, carpet.
Bedroom Three (4.14m x 2.51m at max (13'7 x 8'3 at max ))
Frosted double glazed window to side, fitted wardrobes, radiator, coved ceiling, carpet.
Bedroom Four (3.07m x 2.44m (10'1 x 8'))
Double glazed window to rear, radiator, coved ceiling, laminate flooring.
Bedroom Five (2.41m x 2.18m (7'11 x 7'2 ))
Double glazed bay window to front, fitted bedroom furniture, radiator, coved ceiling, laminate flooring.
Bathroom
Frosted double glazed window to rear, low level WC, wash hand basin, shower cubicle, roll top bath, heated towel rail, coved ceiling, tiled walls, tiled flooring.
Garden (50.29m x 47.55m at widest (165' x 156' at widest))
Decked area leading to lawn, outside lighting and tap, shed.
Driveway & Garage (4.72m x 2.72m (15'6 x 8'11))
Driveway to front for three cars, garage.
Viewing
Please contact us on 01708 963063 if you wish to arrange a viewing appointment for this property, or require further information.
Disclaimer
Noble Residential - CM13 endeavour to maintain accurate depictions of properties in Virtual Tours, Floor Plans and descriptions, however, these are intended only as a guide and purchasers must satisfy themselves by personal inspection.
Entrance Porch
Entrance door, double glazed windows to front and side, tiled flooring.
Entrance Hall
Door to porch, understair cupboard, stairs to first floor, radiator, coved ceiling, Amtico flooring.
Utility Room (2.31m x 1.80m (7'7 x 5'11))
Stainless steel single drainer sink, wall and base units, plumbing for washing machine, tiled flooring.
Reception Room One (4.65m x 3.91m (15'3 x 12'10))
Double glazed bay window to front, feature fire surround, radiator, coved ceiling, laminate flooring.
Reception Room Two (3.76m x 3.40m (12'4 x 11'2))
French doors to kitchen/diner, feature fire surround, radiator, coved ceiling, laminate flooring.
Reception Room Three (4.55m x 2.67m at max (14'11 x 8'9 at max))
Double glazed window to front, cupboard, radiator, coved ceiling, laminate flooring.
Reception Room Four (irregular shape 7.32m x 6.86m at max (irregular s)
Double glazed double doors to rear, access to garage, two radiators, coved ceiling, laminate flooring.
Kitchen/Diner (8.43m x 6.88m narrowing to 3.10m (27'8 x 22'7 nar)
Two double glazed windows to rear, part double glazed door to rear, wall and base units, single drainer sink, gas cooker point, dishwasher, boiler, tiled walls, radiator, tiled flooring.
Ground Floor Bathroom
Frosted double glazed window to rear, low level WC, pedestal wash hand basin, walk in shower enclosure, bath, heated towel rail, tiled walls, tiled flooring.
Landing
Loft access, coved ceiling, carpet.
Bedroom One (4.65m x 3.58m (15'3 x 11'9))
Double glazed bay window to front, radiator, coved ceiling, carpet.
Bedroom Two (3.78m x 3.43m (12'5 x 11'3 ))
Double glazed window to rear, feature fire surround, radiator, coved ceiling, carpet.
Bedroom Three (4.14m x 2.51m at max (13'7 x 8'3 at max ))
Frosted double glazed window to side, fitted wardrobes, radiator, coved ceiling, carpet.
Bedroom Four (3.07m x 2.44m (10'1 x 8'))
Double glazed window to rear, radiator, coved ceiling, laminate flooring.
Bedroom Five (2.41m x 2.18m (7'11 x 7'2 ))
Double glazed bay window to front, fitted bedroom furniture, radiator, coved ceiling, laminate flooring.
Bathroom
Frosted double glazed window to rear, low level WC, wash hand basin, shower cubicle, roll top bath, heated towel rail, coved ceiling, tiled walls, tiled flooring.
Garden (50.29m x 47.55m at widest (165' x 156' at widest))
Decked area leading to lawn, outside lighting and tap, shed.
Driveway & Garage (4.72m x 2.72m (15'6 x 8'11))
Driveway to front for three cars, garage.
Viewing
Please contact us on 01708 963063 if you wish to arrange a viewing appointment for this property, or require further information.
Disclaimer
Noble Residential - CM13 endeavour to maintain accurate depictions of properties in Virtual Tours, Floor Plans and descriptions, however, these are intended only as a guide and purchasers must satisfy themselves by personal inspection.

