Full Description
•Vacant with No Onward Chain•Extended Semi Detached House•Three Bedrooms•Two Reception Rooms•Ground Floor Toilet & First Floor Bathroom•Off Road Parking•Detached Garage & Workshop•Approx. 75ft Rear Garden•Within 27 Min Walk of Chelmsford Station (source: google maps)
PLEASE NOTE
The pictures used in the advert are from 2022. The property is currently being redecorated and once complete, new pictures will be taken.
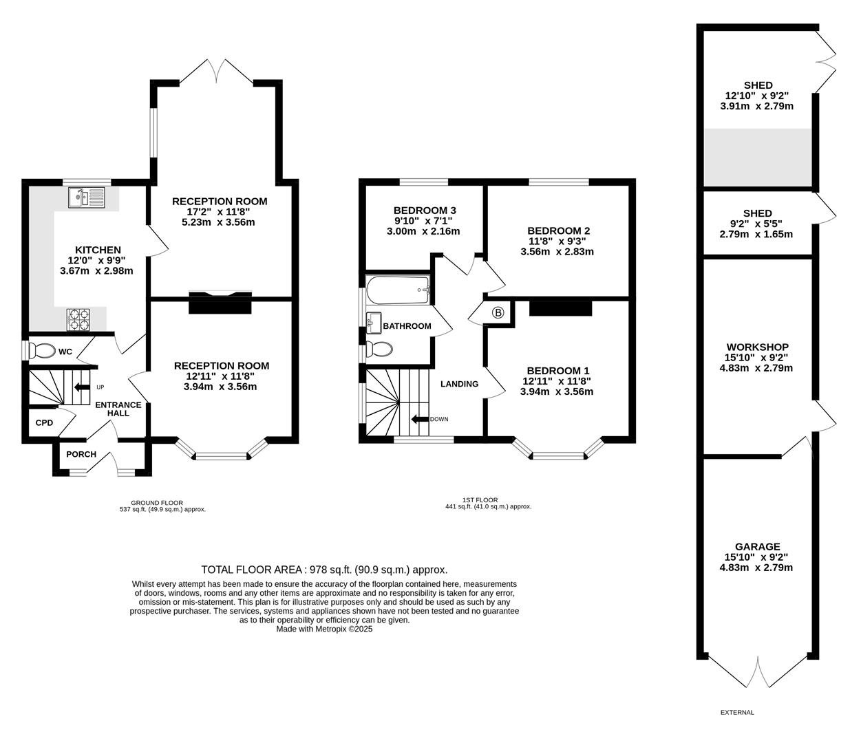
Porch
UPVC entrance door, double glazed windows, door to entrance hall, carpet.
Entrance Hall
Stairs to first floor, under stairs cupboard, smooth ceiling, radiator, laminate flooring.
Ground Floor Toilet
Double glazed window. Smooth ceiling, low level WC, vinyl flooring.
Reception Room (3.94m x 3.56m max sizes (12'11 x 11'8 max sizes))
Double glazed bay window. Smooth ceiling, radiator, carpet.
Kitchen (3.66m x 2.97m (12' x 9'9))
Double glazed window. Smooth ceiling, range of base and eye level wall cabinets, single drainer double bowl stainless steel sink, integrated oven, four burner gas hob, part tiled walls, radiator, tiled floor.
Reception Room (5.23m x 3.56m max sizes (17'2 x 11'8 max sizes))
Double glazed window to one aspect, double glazed patio doors to a second aspect. Radiator, part carpet and part laminate flooring.
First Floor Landing
Two double glazed windows. Smooth ceiling, access to loft space, cupboard housing boiler, carpet.
Bedroom One (3.94m x 3.56m (12'11 x 11'8))
Double glazed bay window. Smooth ceiling, radiator, laminate flooring.
Bedroom Two (3.56m x 2.82m (11'8 x 9'3))
Double glazed window. Smooth ceiling, radiator, carpet.
Bedroom Three (3.00m x 2.16m (9'10 x 7'1))
Double glazed window. Smooth ceiling, radiator, laminate flooring.
Bathroom
Two double glazed windows. Suite comprising of panelled bath with separate overhead shower and glass screen, wash basin with cupboard beneath, low level WC, smooth ceiling, tiled walls, heated towel rail, tiled floor.
Rear Garden (22.86m approx (75' approx))
Hardstanding seating area to the direct rear of the property, with the remainder mainly laid to lawn with footpath leading to pedestrian door to workshop and two sheds. Side access.
Parking
Off road parking for several vehicles to front and rear. Shared driveway with next door to side that has to be kept clear. Shared driveway leads to a Detached Garage & Workshop.
Detached Garage (4.83m x 2.79m (15'10 x 9'2))
Smooth ceiling, LED panel lights, side opening doors, carpet tiles.
Workshop (4.83m x 2.79m (15'10 x 9'2))
Smooth ceiling, strip lights, pedestrian door from garden and internal door to garage, painted concrete floor.
Viewing
Please contact us on 01708 963063 if you wish to arrange a viewing appointment for this property, or require further information.
Energy Performance Certificate
Click here to view the Energy Efficiency Rating and Environmental Impact Rating for this property.
Disclaimer
Noble Residential - CM13 endeavour to maintain accurate depictions of properties in Virtual Tours, Floor Plans and descriptions, however, these are intended only as a guide and purchasers must satisfy themselves by personal inspection.
PLEASE NOTE
The pictures used in the advert are from 2022. The property is currently being redecorated and once complete, new pictures will be taken.
Porch
UPVC entrance door, double glazed windows, door to entrance hall, carpet.
Entrance Hall
Stairs to first floor, under stairs cupboard, smooth ceiling, radiator, laminate flooring.
Ground Floor Toilet
Double glazed window. Smooth ceiling, low level WC, vinyl flooring.
Reception Room (3.94m x 3.56m max sizes (12'11 x 11'8 max sizes))
Double glazed bay window. Smooth ceiling, radiator, carpet.
Kitchen (3.66m x 2.97m (12' x 9'9))
Double glazed window. Smooth ceiling, range of base and eye level wall cabinets, single drainer double bowl stainless steel sink, integrated oven, four burner gas hob, part tiled walls, radiator, tiled floor.
Reception Room (5.23m x 3.56m max sizes (17'2 x 11'8 max sizes))
Double glazed window to one aspect, double glazed patio doors to a second aspect. Radiator, part carpet and part laminate flooring.
First Floor Landing
Two double glazed windows. Smooth ceiling, access to loft space, cupboard housing boiler, carpet.
Bedroom One (3.94m x 3.56m (12'11 x 11'8))
Double glazed bay window. Smooth ceiling, radiator, laminate flooring.
Bedroom Two (3.56m x 2.82m (11'8 x 9'3))
Double glazed window. Smooth ceiling, radiator, carpet.
Bedroom Three (3.00m x 2.16m (9'10 x 7'1))
Double glazed window. Smooth ceiling, radiator, laminate flooring.
Bathroom
Two double glazed windows. Suite comprising of panelled bath with separate overhead shower and glass screen, wash basin with cupboard beneath, low level WC, smooth ceiling, tiled walls, heated towel rail, tiled floor.
Rear Garden (22.86m approx (75' approx))
Hardstanding seating area to the direct rear of the property, with the remainder mainly laid to lawn with footpath leading to pedestrian door to workshop and two sheds. Side access.
Parking
Off road parking for several vehicles to front and rear. Shared driveway with next door to side that has to be kept clear. Shared driveway leads to a Detached Garage & Workshop.
Detached Garage (4.83m x 2.79m (15'10 x 9'2))
Smooth ceiling, LED panel lights, side opening doors, carpet tiles.
Workshop (4.83m x 2.79m (15'10 x 9'2))
Smooth ceiling, strip lights, pedestrian door from garden and internal door to garage, painted concrete floor.
Viewing
Please contact us on 01708 963063 if you wish to arrange a viewing appointment for this property, or require further information.
Energy Performance Certificate
Click here to view the Energy Efficiency Rating and Environmental Impact Rating for this property.
Disclaimer
Noble Residential - CM13 endeavour to maintain accurate depictions of properties in Virtual Tours, Floor Plans and descriptions, however, these are intended only as a guide and purchasers must satisfy themselves by personal inspection.

