Full Description
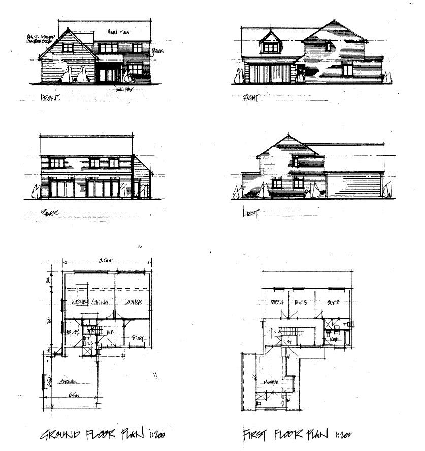
Development site measuring approximately 0.7 acre located in the village of Great Hallingbury just outside Bishops Stortford which is ideally located for the M11 and Stansted Airport. The site has outline planning permission approved for four detached houses with sizing ranging form 1846 Sq Ft - 2218 Sq Ft, for further information please visit the Uttlesford Council planing quoting Ref. No: UTT/25/1332/OP or contact sole agents Noble Residential on 01708 963063.
Viewing
Please contact us on 01708 963063 if you wish to arrange a viewing appointment for this property, or require further information.
Disclaimer
Noble Residential - CM13 endeavour to maintain accurate depictions of properties in Virtual Tours, Floor Plans and descriptions, however, these are intended only as a guide and purchasers must satisfy themselves by personal inspection.
Viewing
Please contact us on 01708 963063 if you wish to arrange a viewing appointment for this property, or require further information.
Disclaimer
Noble Residential - CM13 endeavour to maintain accurate depictions of properties in Virtual Tours, Floor Plans and descriptions, however, these are intended only as a guide and purchasers must satisfy themselves by personal inspection.

