Full Description
• Available Immediately•Brand New House•Semi Detached •Three Bedrooms•Designer Porcelanosa Bathrooms•MVHR (Mechanical Ventilation with Heat Recovery)•Under Floor Heating• Electric Charging Point• Air Source Heat Pump• Triple Glazed Windows Throughout
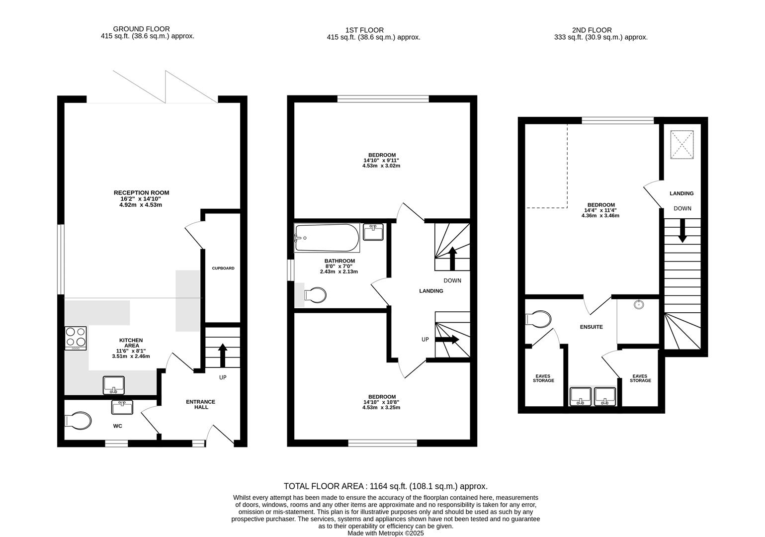
Entrance Hall
Entrance door, frosted triple glazed window to front, stairs to first floor, spot lights, luxury vinyl tile (LVT) flooring with underfloor heating .
Ground Floor WC
Frosted triple glazed window to front, low level WC, vanity wash hand basin, spot lights, part tiled walls, tiled flooring with underfloor heating.
Reception Room (4.93m x 4.52m (16'2 x 14'10 ))
Triple glazed Bi-Folding doors to rear, triple glazed window to side., cupboard hosing hot water system, spot lights, luxury vinyl tile (LVT) flooring with underfloor heating.
Kitchen Area (3.51m x 2.46m (11'6 x 8'1))
Open plan to reception room, range of fitted wall and base units, sink, electric hob, oven, extractor, microwave, fridge freezer, dishwasher, washing machine, spot lights, luxury vinyl tile (LVT) flooring with underfloor heating.
Frist Floor Landing
Stairs to second and ground floor, spot lights, carpet with underfloor heating.
Bedroom Two (3.51m x 2.46m (11'6 x 8'1))
Triple glazed window to rear, spot lights, carpet with underfloor heating.
Bedroom Three (4.27m x 3.25m narrowing to 2.06m (14' x 10'8 narro)
Triple glazed window to side, spot lights, carpet with underfloor heating.
Bathroom
Frosted triple glazed window to side, low level WC, vanity wash hand basin, bath with rainfall shower head, heated towel rail, spot lights, tiled walls, tiled flooring with underfloor heating.
Second Floor Landing
Sky light to rear, vaulted ceiling, carpet with underfloor heating.
Bedroom One (4.37m x 3.45m (14'4 x 11'4))
Triple glazed window to rear, vaulted ceiling, carpet with underfloor heating.
En-Suite
Frosted triple glazed window to front, low level WC, twin wash hand basin, walk in shower enclosure with rainfall shower head, heated towel rail, two eaves storage cupboards, tiled walls, tiled flooring with underfloor heating.
Garden (10.67m (35'))
Side pedestrian access, patio, lawn, outside tap, power and light.
Parking
Two allocated parking spaces, electric charging point.
Viewing
Please contact us on 01708 963064 if you wish to arrange a viewing appointment for this property, or require further information.
Energy Performance Certificate
Click here to view the Energy Efficiency Rating and Environmental Impact Rating for this property.
Disclaimer
Noble Residential - CM13 endeavour to maintain accurate depictions of properties in Virtual Tours, Floor Plans and descriptions, however, these are intended only as a guide and purchasers must satisfy themselves by personal inspection.
Entrance Hall
Entrance door, frosted triple glazed window to front, stairs to first floor, spot lights, luxury vinyl tile (LVT) flooring with underfloor heating .
Ground Floor WC
Frosted triple glazed window to front, low level WC, vanity wash hand basin, spot lights, part tiled walls, tiled flooring with underfloor heating.
Reception Room (4.93m x 4.52m (16'2 x 14'10 ))
Triple glazed Bi-Folding doors to rear, triple glazed window to side., cupboard hosing hot water system, spot lights, luxury vinyl tile (LVT) flooring with underfloor heating.
Kitchen Area (3.51m x 2.46m (11'6 x 8'1))
Open plan to reception room, range of fitted wall and base units, sink, electric hob, oven, extractor, microwave, fridge freezer, dishwasher, washing machine, spot lights, luxury vinyl tile (LVT) flooring with underfloor heating.
Frist Floor Landing
Stairs to second and ground floor, spot lights, carpet with underfloor heating.
Bedroom Two (3.51m x 2.46m (11'6 x 8'1))
Triple glazed window to rear, spot lights, carpet with underfloor heating.
Bedroom Three (4.27m x 3.25m narrowing to 2.06m (14' x 10'8 narro)
Triple glazed window to side, spot lights, carpet with underfloor heating.
Bathroom
Frosted triple glazed window to side, low level WC, vanity wash hand basin, bath with rainfall shower head, heated towel rail, spot lights, tiled walls, tiled flooring with underfloor heating.
Second Floor Landing
Sky light to rear, vaulted ceiling, carpet with underfloor heating.
Bedroom One (4.37m x 3.45m (14'4 x 11'4))
Triple glazed window to rear, vaulted ceiling, carpet with underfloor heating.
En-Suite
Frosted triple glazed window to front, low level WC, twin wash hand basin, walk in shower enclosure with rainfall shower head, heated towel rail, two eaves storage cupboards, tiled walls, tiled flooring with underfloor heating.
Garden (10.67m (35'))
Side pedestrian access, patio, lawn, outside tap, power and light.
Parking
Two allocated parking spaces, electric charging point.
Viewing
Please contact us on 01708 963064 if you wish to arrange a viewing appointment for this property, or require further information.
Energy Performance Certificate
Click here to view the Energy Efficiency Rating and Environmental Impact Rating for this property.
Disclaimer
Noble Residential - CM13 endeavour to maintain accurate depictions of properties in Virtual Tours, Floor Plans and descriptions, however, these are intended only as a guide and purchasers must satisfy themselves by personal inspection.

