Full Description
• Available from February 2026• Extended Semi Detached Home• Three Bedrooms• Ground Floor WC• First Floor Bathroom• 90ft Rear Garden• 15 Minute Walk to Gidea Park Station (source: google maps)Holding Deposit is equal to one weeks rentSecurity Deposit is equal to five weeks rent
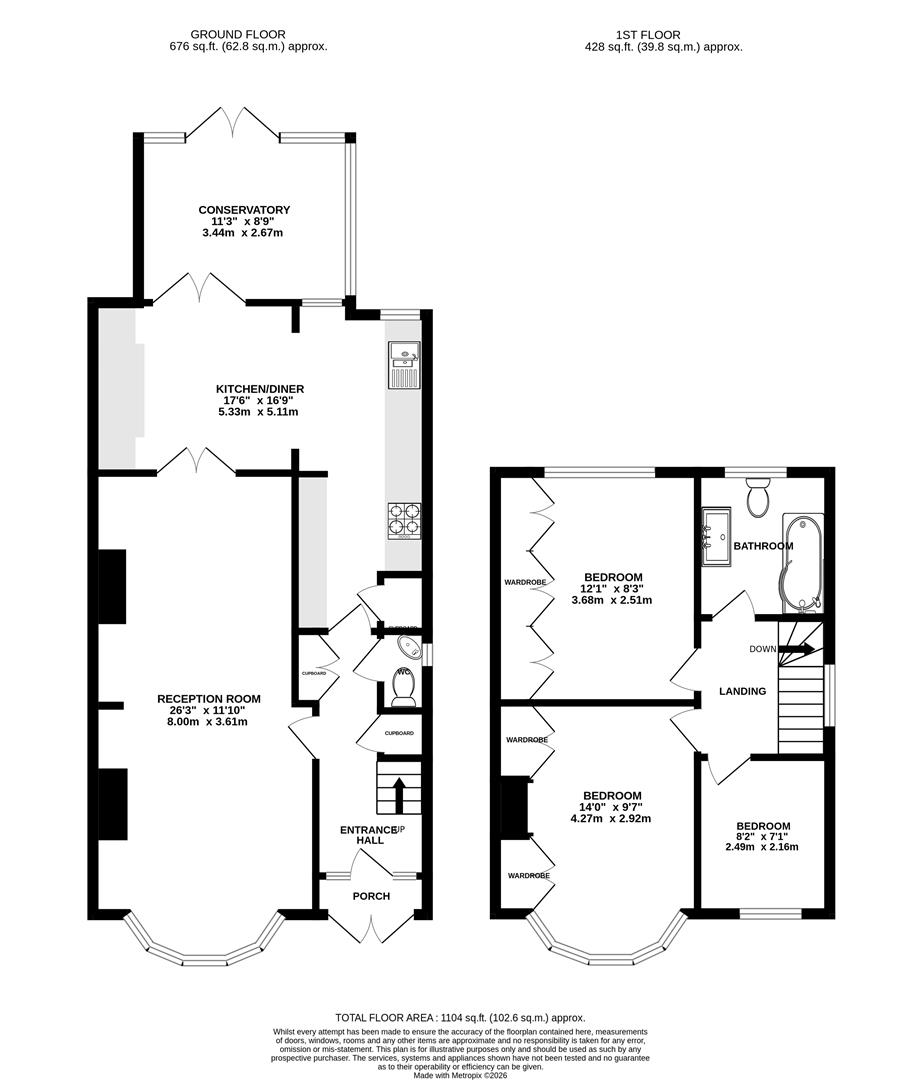
Entrance Porch
Entrance Hall
Door to porch, stairs to first floor, under stair cupboard, radiator, laminate flooring.
Ground Floor WC
Frosted double glazed window to side, low level WC, vanity wash hand basin, heated towel rail, part tiled walls, tiled flooring.
Reception Room (1.91m x 3.61m narrowing to 3.28m (6'3 x 11'10 narr)
Double glazed bay window to front, radiator, wooden flooring.
Conservatory (3.43m x 2.67m (11'3 x 8'9))
Double glazed French doors to rear, double glazed windows to side and rear, electric heater, laminate flooring.
Kitchen/Breakfast Room (5.33m x 5.11m narrowing to 2.77m (17'6 x 16'9 narr)
Double glazed window to rear, double glazed French doors to reception room and conservatory, wall and base units, stainless steel single drainer sink, gas hob, oven, extractor, integrated dishwasher, washing machine, fridge freezer, cupboard housing boiler, double glazed sky light, part tiled walls, laminate flooring.
Landing
Double glazed window to side, loft access, carpet.
Bedroom One (4.27m x 2.92m (14' x 9'7))
Double glazed bay window to front, freestanding wardrobes, radiator, carpet.
Bedroom Two (3.68m x 2.51m (12'1 x 8'3 ))
Double glazed window to rear, fitted wardrobes, radiator, carpet.
Bedroom Three (2.49m x 2.16m (8'2 x 7'1))
Double glazed window to front, radiator, carpet.
Bathroom
Frosted double glazed window to rear, low level WC, vanity wash hand basin, panelled bath with overhead shower, heated towel rail, tiled walls, tiled flooring.
Garden (27.43m (90'))
Side pedestrian access, patio, lawn, timber outbuilding.
Parking
Block paved driveway to front.
Viewing
Please contact us on 01708 963064 if you wish to arrange a viewing appointment for this property, or require further information.
Energy Performance Certificate
Click here to view the Energy Efficiency Rating and Environmental Impact Rating for this property.
Disclaimer
Noble Residential - CM13 endeavour to maintain accurate depictions of properties in Virtual Tours, Floor Plans and descriptions, however, these are intended only as a guide and purchasers must satisfy themselves by personal inspection.
Entrance Porch
Entrance Hall
Door to porch, stairs to first floor, under stair cupboard, radiator, laminate flooring.
Ground Floor WC
Frosted double glazed window to side, low level WC, vanity wash hand basin, heated towel rail, part tiled walls, tiled flooring.
Reception Room (1.91m x 3.61m narrowing to 3.28m (6'3 x 11'10 narr)
Double glazed bay window to front, radiator, wooden flooring.
Conservatory (3.43m x 2.67m (11'3 x 8'9))
Double glazed French doors to rear, double glazed windows to side and rear, electric heater, laminate flooring.
Kitchen/Breakfast Room (5.33m x 5.11m narrowing to 2.77m (17'6 x 16'9 narr)
Double glazed window to rear, double glazed French doors to reception room and conservatory, wall and base units, stainless steel single drainer sink, gas hob, oven, extractor, integrated dishwasher, washing machine, fridge freezer, cupboard housing boiler, double glazed sky light, part tiled walls, laminate flooring.
Landing
Double glazed window to side, loft access, carpet.
Bedroom One (4.27m x 2.92m (14' x 9'7))
Double glazed bay window to front, freestanding wardrobes, radiator, carpet.
Bedroom Two (3.68m x 2.51m (12'1 x 8'3 ))
Double glazed window to rear, fitted wardrobes, radiator, carpet.
Bedroom Three (2.49m x 2.16m (8'2 x 7'1))
Double glazed window to front, radiator, carpet.
Bathroom
Frosted double glazed window to rear, low level WC, vanity wash hand basin, panelled bath with overhead shower, heated towel rail, tiled walls, tiled flooring.
Garden (27.43m (90'))
Side pedestrian access, patio, lawn, timber outbuilding.
Parking
Block paved driveway to front.
Viewing
Please contact us on 01708 963064 if you wish to arrange a viewing appointment for this property, or require further information.
Energy Performance Certificate
Click here to view the Energy Efficiency Rating and Environmental Impact Rating for this property.
Disclaimer
Noble Residential - CM13 endeavour to maintain accurate depictions of properties in Virtual Tours, Floor Plans and descriptions, however, these are intended only as a guide and purchasers must satisfy themselves by personal inspection.

