Full Description
•Available From 17th December 2025•Extended House•Four Bedrooms•Main Bedroom Has Ensuite•Ground Floor WC•South-Easterly Facing Rear Garden•Off Road Parking•26 Min Walk of Romford Station (google maps)
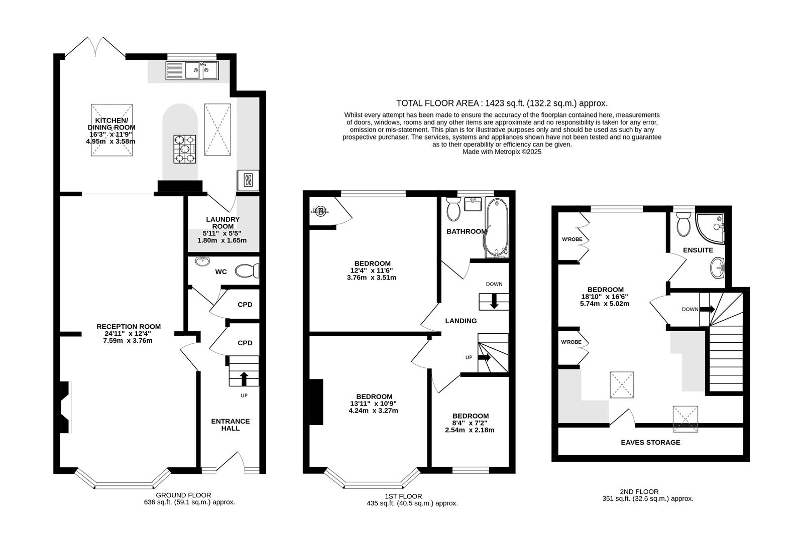
Entrance Hall
Entrance door. Smooth ceiling, coving, dado rail, radiator, two cupboards under stairs, laminate flooring.
Ground Floor WC
Smooth ceiling, spotlights, extractor, low level wc, wall mounted wash hand basin, heated towel rail, part tiled walls.
Reception Room
Double glazed bay window with planation style shutters. Smooth ceiling, coving, spotlights, dado rail, feature fireplace, designer radiator, laminate flooring. Archway to Kitchen/Dining Room.
Kitchen/Dining Room
Double glazed window, double glazed patio doors to garden, two skylights. Smooth ceiling, spotlights, range of high gloss base and eye level wall cabinets with black worktops, breakfast bar, two ceramic sink bowls with drainer and spray tap, integrated oven, stainless steel five burner gas hob with stainless steel overhead extractor, radiator, laminate flooring.
Laundry Room
Smooth ceiling, spotlights, base and eye level cabinet, worktop, laminate flooring.
First Floor Landing
Smooth ceiling, coving, carpet.
Bedroom Two
Double glazed bay window. Smooth ceiling, spotlights, radiator, freestanding wardrobe which can remain, carpet.
Bedroom Three
Double glazed window. Smooth ceiling, coving, spotlights, radiator, cupboard housing boiler, two freestanding wardrobes which can remain, carpet.
Bedroom Four
Double glazed window. Smooth ceiling, spotlights, dado rail, radiator, carpet.
Bathroom
Double glazed window. Suite comprising of P-shape bath with shower attachment to tap and overhead bracket, glass screen, wash basin with drawer beneath, low level wc, smooth ceiling spotlights, tiled walls, heated towel rail, tiled floor.
Second Floor Landing
Skylight. Smooth ceiling, spotlights, carpet.
Bedroom One
Double glazed window and two skylights. Smooth ceiling, spotlights, built in wardrobes, drawers and desk, eaves storage, carpet.
Ensuite
Double glazed window. Suite comprising of pedestal wash basin, shower cubicle and low level wc, smooth ceiling, spotlights, part tiled walls, heated towel rail, tiled floor.
Rear Garden - South-Easterly Facing (22.86m approx. (75' approx. ))
Slabbed seating area to the direct rear of the property with the remainder mainly laid to lawn. Shed on raised slabbed area with power & light. Children's climbing frame which can remain.
Viewing
Please contact us on 01708 963064 if you wish to arrange a viewing appointment for this property, or require further information.
Disclaimer
Noble Residential - CM13 endeavour to maintain accurate depictions of properties in Virtual Tours, Floor Plans and descriptions, however, these are intended only as a guide and purchasers must satisfy themselves by personal inspection.
Entrance Hall
Entrance door. Smooth ceiling, coving, dado rail, radiator, two cupboards under stairs, laminate flooring.
Ground Floor WC
Smooth ceiling, spotlights, extractor, low level wc, wall mounted wash hand basin, heated towel rail, part tiled walls.
Reception Room
Double glazed bay window with planation style shutters. Smooth ceiling, coving, spotlights, dado rail, feature fireplace, designer radiator, laminate flooring. Archway to Kitchen/Dining Room.
Kitchen/Dining Room
Double glazed window, double glazed patio doors to garden, two skylights. Smooth ceiling, spotlights, range of high gloss base and eye level wall cabinets with black worktops, breakfast bar, two ceramic sink bowls with drainer and spray tap, integrated oven, stainless steel five burner gas hob with stainless steel overhead extractor, radiator, laminate flooring.
Laundry Room
Smooth ceiling, spotlights, base and eye level cabinet, worktop, laminate flooring.
First Floor Landing
Smooth ceiling, coving, carpet.
Bedroom Two
Double glazed bay window. Smooth ceiling, spotlights, radiator, freestanding wardrobe which can remain, carpet.
Bedroom Three
Double glazed window. Smooth ceiling, coving, spotlights, radiator, cupboard housing boiler, two freestanding wardrobes which can remain, carpet.
Bedroom Four
Double glazed window. Smooth ceiling, spotlights, dado rail, radiator, carpet.
Bathroom
Double glazed window. Suite comprising of P-shape bath with shower attachment to tap and overhead bracket, glass screen, wash basin with drawer beneath, low level wc, smooth ceiling spotlights, tiled walls, heated towel rail, tiled floor.
Second Floor Landing
Skylight. Smooth ceiling, spotlights, carpet.
Bedroom One
Double glazed window and two skylights. Smooth ceiling, spotlights, built in wardrobes, drawers and desk, eaves storage, carpet.
Ensuite
Double glazed window. Suite comprising of pedestal wash basin, shower cubicle and low level wc, smooth ceiling, spotlights, part tiled walls, heated towel rail, tiled floor.
Rear Garden - South-Easterly Facing (22.86m approx. (75' approx. ))
Slabbed seating area to the direct rear of the property with the remainder mainly laid to lawn. Shed on raised slabbed area with power & light. Children's climbing frame which can remain.
Viewing
Please contact us on 01708 963064 if you wish to arrange a viewing appointment for this property, or require further information.
Disclaimer
Noble Residential - CM13 endeavour to maintain accurate depictions of properties in Virtual Tours, Floor Plans and descriptions, however, these are intended only as a guide and purchasers must satisfy themselves by personal inspection.

